Blommersdijkselaan 7-A

3036 NA Rotterdam

€ 575.000 k.k.

Nieuw
Sluiten

Reageren

Blommersdijkselaan 7-A
Rotterdam


 
 

Unieke vooroorlogse kluswoning aan de charmante Blommersdijkselaan in het Oude Noorden!

Deze woning bestaat uit een beneden- en bovenwoning 7A en 7B en moet geheel worden gerenoveerd. De woning wordt verkocht met een samenvoegverplichting en een zelfbewoningsplicht.

INTERESSE IN DIT BIJZONDERE OBJECT?

BEZOEK HET OPEN HUIS (gecombineerd met 9A en 9B):

VRIJDAG 26 SEPTEMBER TUSSEN 16.00 EN 17.00 UUR OF
ZATERDAG 27 SEPTEMBER TUSSEN 11.00 EN 12.00 UUR

LET OP! GEEN KINDEREN MEENEMEN I.V.M. GEVAARLIJKE SITUATIE DOOR ONTBREKEN BEGANE GROND VLOER 7A

DE BENEDENWONINGEN STAAN LEEG, DE BOVENWONINGEN ZIJN NOG BEWOOND



De fundering is recentelijk hersteld.

Bijzonderheden:

7A:
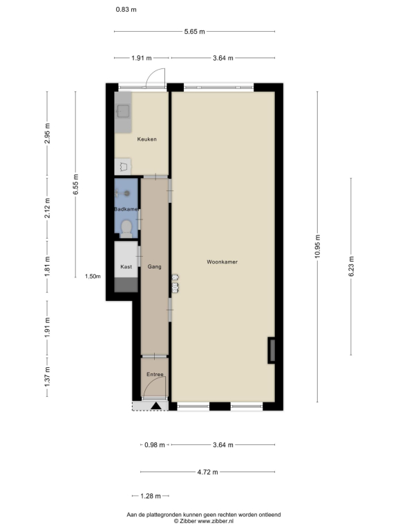
- Entree, hal
- Zeer eenvoudige badruimte met douche en toilet
- Woonkamer, ca. 10.95x3.64m (begane grond vloer nog te plaatsen)
- Keuken, ca. 2.95x1.91m met toegang tot ruime achtertuin (NO)

7B:
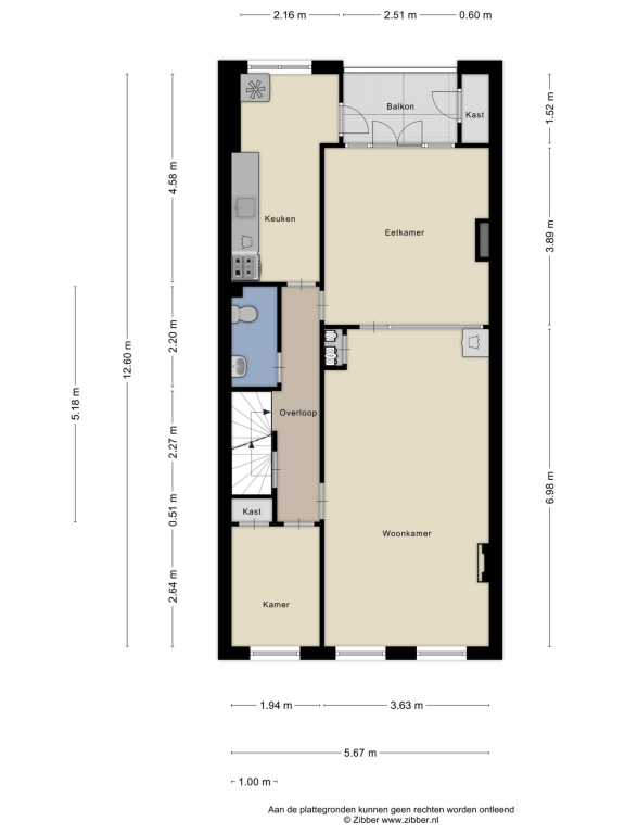
1e verdieping
- Overloop
- Woonkamer, ca. 6.86x3.61m aan de voorzijde
- Slaapkamer 1, ca. 4.06x3.61m aan de achterzijde
- Slaapkamer 2, ca. 2.70x1.94m aan de voorzijde
- Keuken, ca. 4.53x2.13m met eenvoudig keukenblok en toegang tot balkon (NO)
- Eenvoudige badruimte met douche en toilet

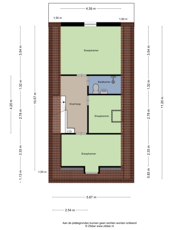
2e verdieping (zolder)
- Overloop, opstelruimte c.v.-ketel (2023)
- Slaapkamer 1, ca. 4.40x2.93m
- Slaapkamer 2, ca. 4.40x2.83m
- Eenvoudige badruimte met douche en toilet
- Bergruimte

Goed om te weten:
- Vrije verkoop met vraagprijs, bieden is mogelijk na bezoek van het open huis
- Erfpacht, canon eeuwigdurend afgekocht
- Samenvoegverplichting van toepassing, de twee appartementen moeten blijvend bouwkundig worden samengevoegd tot 1 woning, aparte bewoning niet toegestaan
- Er wordt een ouderdomsclausule en een niet bewoningsclausule opgenomen
- Deze woning heeft een eeuwigdurende zelfbewoningsplicht: je mag de woning niet verhuren of in gebruik geven aan iemand anders
- Er geldt een antispeculatiebeding: je moet na samenvoeging minimaal twee jaar zelf in het huis wonen vóór je het mag verkopen
- Het notarieel transport vindt plaats bij een projectnotaris
- Bouwkundig rapport aanwezig

Het Oude Noorden is een karakteristieke Rotterdamse wijk, met bekende straten als de Bergweg, Zwart Janstraat, Zwaanshals en het Noordplein. Je hoeft de wijk niet uit om iets te beleven. Cafés en restaurants zijn er in overvloed, en je vindt er winkels van drogist tot opticien en van speelgoedwinkel tot speciaalzaak. Op zaterdag staat de gezellige Rotterdamse Oogstmarkt op het Noordplein. Ook als je graag wandelt of een rondje hardloopt, dan zit je hier goed: je woont vlak bij het Kralingse Bos en de Bergse Plas. In maximaal tien minuten fiets je naar het centrum. Het centraal station en de snelweg liggen aan de rand van de wijk.

Kinderen kunnen hier volop spelen op een van de sport- en speelveldjes en in de speeltuin Wikado. Voor sport-, spel- kunst- en muziekactiviteiten breng je je kinderen naar het wijkcentrum van het Oude Noorden. Er zijn vijf basisscholen en verschillende kinderopvanglocaties. Je vindt hier ook een gezondheidscentrum met huisartsen, fysiotherapeuten en een apotheek.

De advertenties op deze website zijn met de grootste zorg opgesteld. Toch kan het onverhoopt voorkomen dat een advertentie niet volledig is of een fout bevat. Derhalve zijn alle advertenties onder voorbehoud van druk-, type- en spelfouten.

Overdracht

Vraagprijs € 575.000 k.k.
Aangeboden sinds 17 september 2025
Status Te koop
Aanvaarding In overleg

Bouw

Soort object Woonhuis, tussenwoning
Soort bouw Bestaande bouw
Bouwjaar 1910

Oppervlakten en inhoud

Woonoppervlakte 161 m²
Perceeloppervlakte 124 m²
Inhoud 420 m³

Indeling

Aantal kamers 6 kamers (4 slaapkamers)
Woonlagen 3

Energie

Energielabel E
Woonstad Rotterdam
Deze woning is van Woonstad Rotterdam.
Voor bezichtigingen reageer op dit object via de volgende knop.

Heb je interesse en wil je een bod uitbrengen of wil je meer informatie? Neem contact op met CORPOwonen