Deensestraat 71-A

3028 GE Rotterdam

€ 292.500 k.k.

Sluiten

Reageren

Deensestraat 71-A
Rotterdam


 
 

Rotterdam - Oud-Mathenesse

Vraagprijs € 292.500,00 k.k.

Heeft u interesse in deze woning? Laat het ons weten via Woonbron.nl met de groene knop "Reageer nu" of via Corpowonen met de oranje knop “Reageer op dit object”.

Een unieke kans voor de handige woningzoeker!

Ben je op zoek naar ruimte, licht en volop mogelijkheden om jouw eigen woonwensen te realiseren? Dan is dit ruime 4‑kamerappartement met maar liefst twee woningbrede balkons precies wat je zoekt.
De woning is gelegen op de tweede en derde verdieping, met een eigen entree op de eerste verdieping, en biedt een speelse indeling die uitnodigt om er iets bijzonders van te maken. Hoewel de woning nog naar eigen smaak gemoderniseerd kan worden, is de badkamer al volledig vernieuwd — een fijne basis om op voort te bouwen. Daarnaast is het appartement voorzien van kunststof kozijnen met dubbele beglazing en een cv‑installatie met goed onderhouden cv‑ketel, wat zorgt voor een prettig wooncomfort.
Wordt dit jouw klusproject van 2026, waar je stap voor stap jouw droomthuis creëert?

De wijk Oud Mathenesse ligt tussen Rotterdam en Schiedam. Op ca 5 minuten bevindt zich de oprit van de A20, de bushalte (lijn 38) aan de voorkant in de Franselaan en Marconiplein binnen 5 minuten fietsen. In de buurt diverse supermarkten, winkels en restaurants, diverse scholen, huisartsen, sportvoorzieningen en recreatieve voorzieningen (o.a. kinderboerderij De Bokkesprong en Roel Langerakpark)

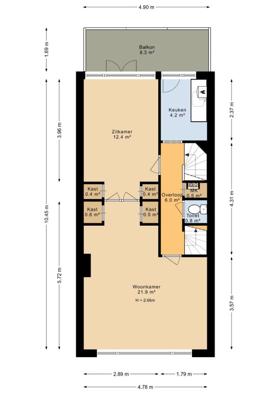
Indeling:
Eerste verdieping
Entree/hal met trap naar tweede

Tweede verdieping
Gang met links het toilet, meterkast, trap naar derde, de woonkamer aan de voorzijde met authentieke glas-in-lood schuifdeuren. Deze zou toegang geven naar de slaapkamer aan de achterzijde maar is dichtgezet. Rechts van de trap bevindt zich de zeer eenvoudige keuken met cv opstelling. Vanuit de zowel de keuken en de slaapkamer is er toegang naar het eerste balkon op het westen.

Derde verdieping
Overloop/gang, slaapkamer aan de voorzijde met dakkapel, tussenruimte met wasmachine aansluiting, inbouwkast en toegang naar de geheel vernieuwde badkamer. Deze is geheel betegeld en voorzien van een douchecabine en wastafel met spiegel. Aan de achterzijde een slaapkamer met openslaande deuren naar het tweede balkon.

Kenmerken:
- Appartement met veel ruimte en veel licht
- Dubbele beglazing
- CV installatie (ketel bouwjaar 2020)
- Eeuwigdurend afgekocht erfpacht -Bloot Eigendom wordt meegeleverd

Afmetingen:
- Woonkamer totaal ca. 21.9 m²
- Keuken totaal ca. 4 m²
- Badkamer totaal ca. 3 m²
- Eet/slaapkamer 1 totaal ca. 12.4 m²
- Slaapkamer 2 totaal ca. 15 m²
- Slaapkamer 3 totaal ca. 14m²
- Interne bergruimte ca. 3 m²
- Balkon 1 totaal ca. 8 m²
- Balkon 2 totaal ca. 6 m²

Bijzonderheden:
- Projectnotaris van toepassing
- Eeuwigdurende zelfbewoningsplicht van toepassing
- Anti-speculatiebeding van 2 jaar van toepassing
- Maandelijkse VvE bijdrage (2025) € 271,00 (2026 nog niet vastgesteld)
- Eigen bouwkundig onderzoek aanbevolen
- Ouderdom en Niet Bewonersclausule van toepassing
- Mogelijk eigen bijdrage van toepassing ivm onderhoud

Bij aankoop van deze woning zal de oplevering binnen 6 weken plaatsvinden. Indien u over wilt gaan tot een optie of aankoop van de woning dient u aan Woonbron Makelaars aan te tonen dat de koopsom van de woning voor u financieel haalbaar is. Dit kan aangetoond worden door bijvoorbeeld afgifte van een uitgebracht advies door een daartoe deskundige en erkende financiële instelling of adviseur.

Plattegronden en afmetingen zijn indicatief.

Dit is een woning die u koopt op de vrije markt. Verbouwen of tussentijds een extra financiering voor een verbouwing afsluiten, dat regelt u zelf zonder aanvullende voorwaarden.
Wanneer u weer wilt verhuizen en de woning verkoopt, hoeft u hem niet aan de corporatie te verkopen. U kunt zelf een verkoopmakelaar uitzoeken die de woning voor u verkoopt op de vrije markt waarbij u zelf de verkoopprijs bepaalt.

U mag de woning niet verhuren of op andere wijze in gebruik geven aan anderen, dit geldt ook voor opvolgende eigenaren als u de woning weer gaat verkopen! Bewoning of huur door een eerstegraads bloed- of aanverwant wordt als eigen bewoning beschouwd. Het is niet toegestaan om de woning binnen twee jaar na het tekenen van de akte van levering te verkopen. Dit wordt opgenomen in de koopovereenkomst en akte van levering.

Overdracht

Vraagprijs € 292.500 k.k.
Aangeboden sinds 2 maanden
Status Te koop
Aanvaarding Per direct

Bouw

Soort object Appartement, bovenwoning
Soort bouw Bestaande bouw
Bouwjaar 1938

Oppervlakten en inhoud

Woonoppervlakte 88 m²
Inhoud 255 m³

Indeling

Aantal kamers 4 kamers (2 slaapkamers)
Woonlagen 2
Gelegen op verdieping 2

Energie

Energielabel D

VvE

Bijdrage € 271 per maand
Woonbron Makelaars
Deze woning is van Woonbron Makelaars.
Voor bezichtigingen reageer op dit object via de volgende knop.

Heb je interesse en wil je een bod uitbrengen of wil je meer informatie? Neem contact op met CORPOwonen