Schoklandsestraat 19-A

3083 PB Rotterdam

€ 212.500 k.k.

Nieuw Koopgarant
Sluiten

Reageren

Schoklandsestraat 19-A
Rotterdam


 
 

Rotterdam - Charlois

U KUNT ZICH TOT UITERLIJK WOENSDAG 1 APRIL 09.00 UUR INSCHRIJVEN VOOR DEZE WONING
Heeft u interesse in deze woning? Laat het ons weten via de groene knop op Woonbron via de knop “Reageer nu” en op Corpowonen via de oranje knop “reageer op dit object”. Of op de website van Woonbron of Corpowonen.

Koopsom van € 250.000,-- k.k. voor € 212.5000,-- k.k. (met terugkoopgarantie).

Kandidaten met een sociale huurwoning van verkoper en met een passend inkomen, krijgen voorrang op deze KoopGarant-woning. Bij meerdere kandidaten gaat de kandidaat met het langstlopende huidige huurcontract voor. Voorwaarde is dat de huur direct na het vervallen van de ontbindende voorwaarde voor financiering opgezegd wordt.’


Superleuk, goed onderhouden 3- kamer appartement met riante achtertuin gelegen op de eerste verdieping van een kleinschalig complex. De locatie van de woning is erg fijn. Op korte afstand treft u winkelcentrum Zuidplein en op loopafstand vindt u diverse openbaar vervoer voorzieningen.

Indeling:

Begane grond :
Centrale entree met bellentableau, brievenbussen en trapopgang.

Eerste verdieping :
Entree met hal en meterkast. Ruime doorzon woonkamer voorzien van een bar. Het keukenblok aan de achterzijde gelegen is eenvoudig doch netjes en beschikt over een spoelbak, koel-vries combinatie en een gaskookstel. . Woonkamer geeft toegang tot de riante deels betegelde achtertuin.. De slaapkamer is gelegen aan de voorzijde van de woning. De badkamer is volledig betegeld en heeft een douchecabine en toilet.

Kelder:
Voormalige berging is omgeturnd tot extra slaapkamer. (Er kunnen geen rechten worden ontleend aan de manier waarop de diverse ruimtes gebruikt kunnen worden.)

Afmetingen:
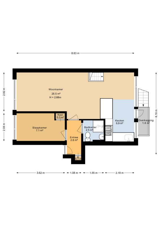
- Woonkamer: totaal ± 26 m²
- Keuken: totaal ± 7m²
- Badkamer: totaal ± 3 m²
- Slaapkamer 1: totaal ± 7 m²
- Slaapkamer 2: totaal ± 11m²
- Tuin: totaal ± 40 m²

Bijzonderheden:
U KUNT ZICH TOT UITERLIJK WOENSDAG 1 APRIL 09.00 UUR INSCHRIJVEN VOOR DEZE WONING
- Maandelijkse VvE bijdrage circa € 120
- Projectnotaris van toepassing;
- Eeuwigdurende zelfbewoningsplicht;
- Koopgarant voorwaarden van toepassing;
- De woning wordt verkocht middels een loting.

Bij aankoop van deze woning zal de oplevering binnen 6 weken plaatsvinden. Indien u over wilt gaan tot een optie of aankoop van de woning dient u aan Woonbron Makelaars aan te tonen dat de koopsom van de woning voor u financieel haalbaar is. Dit kan aangetoond worden door bijvoorbeeld afgifte van een uitgebracht advies door een daartoe deskundige en erkende financiële instelling of adviseur.

Plattegronden en afmetingen zijn indicatief.

Deze woning wordt gepubliceerd met een deadline tot wanneer u zich bij interesse kunt aanmelden, daarna kijken we of er geïnteresseerden met voorrang zijn. Is dit niet het geval dan wordt er geloot.

Kandidaten met een sociale huurwoning van Woonbron en met een passend inkomen, krijgen voorrang op deze KoopGarant-woning. Bij meerdere kandidaten gaat de kandidaat met het langstlopende huidige huurcontract voor. Voorwaarde is dat de huur direct na het vervallen van de ontbindende voorwaarde voor financiering opgezegd wordt.’

Bijzonderheden:
• Voorrangsregeling van toepassing voor huurders van een sociale huurwoning van Woonbron met een passend inkomen.
• Zelfbewoningsplicht, dus (kamer)verhuur of studentenbewoning is niet toegestaan.
• Inschrijving is alleen mogelijk indien u 18 jaar of ouder bent.
• Degene die inschrijft dient de uiteindelijke koper en bewoner te zijn, koopt u samen dan moet u zich ook samen inschrijven door middel van één inschrijving. De bruto-inkomens van alle kopers tellen mee voor de voorrangsregeling.
• Bij meerdere inschrijvingen (ook uit hetzelfde huishouden) vervalt uw deelname.
• U dient op uw contactgegevens bereikbaar te zijn, indien wij u twee dagen niet hebben kunnen bereiken behouden wij ons het recht voor om de woning aan de volgende kandidaat te verkopen.
• Inschrijven kan tot de deadline gemeld in de advertentie.
• Plattegronden en afmetingen zijn indicatief!

KoopGarant
Deze woning wordt onder (Onder)Erfpacht- en KoopGarantbepalingen verkocht. U krijgt van Woonbron een koperskorting van 15% op de taxatiewaarde van deze woning. Dat scheelt aanzienlijk in uw woonlasten. Deze korting wordt bij terugverkoop verrekend. Met KoopGarant bent u bovendien verzekerd van een snelle verkoop als u gaat verhuizen. Woonbron koopt de woning binnen drie maanden van u terug.
We plannen de bezichtiging als eerste met geïnteresseerden die voorrang bij ons krijgen. Als er geen voorrangskandidaten zijn gaan we over tot loting.

Voorwaarden KoopGarant
Aan het kopen van een KoopGarant-woning zijn voorwaarden verbonden. Zo heeft u een zelfbewoningplicht, wat onder andere betekent dat u de woning niet (gedeeltelijk) mag verhuren. Daarnaast moet u uw hypotheek afsluiten met Nationale Hypotheekgarantie (NHG). Bovendien wordt, als u de woning terugverkoopt aan Woonbron, de winst of het verlies gedeeld in een verhouding van 15% voor Woonbron en 85% voor u. Een onafhankelijk taxateur bepaalt de marktwaarde van uw woning bij aan- en verkoop. De aan- en verkoopprijs is een vastgestelde prijs, u kunt hier niet over onderhandelen.

Overdracht

Koopsom € 212.500 k.k.
Kopersregeling Koopgarant
Aangeboden sinds 24 maart 2026
Status Te koop
Aanvaarding Per direct

Bouw

Soort object Appartement, portiekflat
Soort bouw Bestaande bouw
Bouwjaar 1939

Oppervlakten en inhoud

Woonoppervlakte 58 m²
Inhoud 162 m³

Indeling

Aantal kamers 2 kamers (1 slaapkamers)
Woonlagen 1
Gelegen op verdieping 1

Energie

Energielabel F

VvE

Bijdrage € 120 per maand
Woonbron Makelaars
Deze woning is van Woonbron Makelaars.
Voor bezichtigingen reageer op dit object via de volgende knop.

Heb je interesse en wil je je inschrijven? Klik op de ‘Online Inschrijven’-knop hieronder.