Vermeerstraat 29

2612 XJ Delft

€ 475.000 k.k.

Bijna verkocht
Sluiten

Reageren

Vermeerstraat 29
Delft


 
 

Delft - Vrijenban

Vraagprijs € 475.000,-- k.k.

Heeft u interesse in deze woning? Laat het ons weten via Woonbron.(nl) met de groene knop "Reageer nu" of via Corpowonen met de oranje knop “Reageer op dit object”.

Tuinliefhebbers opgelet! Te koop in een van de leukste straatjes van Delft: een
tussenwoning met SUPER achtertuin met berging. De woning is gelegen in een fraaie en rustige straat in een woonwijk net buiten het centrum. De bereikbaarheid ten opzichte van de snelweg en het openbaar vervoer is goed. Het station ligt op fietsafstand. Alle centrumvoorzieningen (winkels, scholen, speeltuinen, huisarts) zijn op korte afstand gelegen.

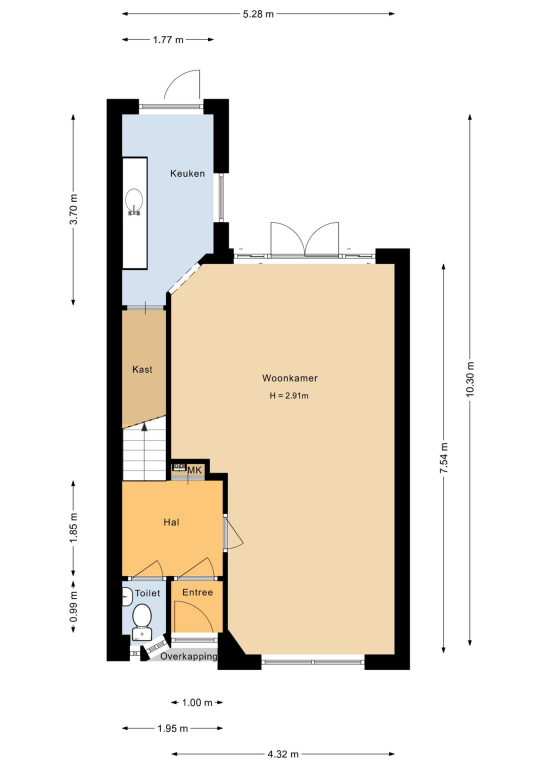
Indeling:
Begane grond: woningentree, hal met meterkast, toilet met fonteintje, ruime woonkamer met openslaande deuren naar de achtertuin, keuken in de uitbouw, deur naar de achtertuin. Diepe tuin met achterom en vrijstaande houten berging.
Eerste verdieping: overloop, deur naar het balkon, 2 slaapkamers, badkamer met douche, toilet en wastafel, wasmachine ruimte/berging.
Luik naar bergvliering met vlizotrap.

Afmetingen:
- Woonkamer: totaal ca. 30.00 m²
- Keuken: totaal ca. 6.00 m²
- Badkamer: totaal ca. 4.00 m²
- Slaapkamer 1: totaal ca. 12.00 m²
- Slaapkamer 2: totaal ca. 13.00 m²
- Balkon: totaal ca. 7.00 m²
- Berging: totaal ca. 6.00 m²
- Tuin: totaal ca. 90.00 m²

Bijzonderheden:
- Projectnotaris van toepassing;
- Eeuwigdurende zelfbewoningsplicht;
- Anti speculatiebeding van toepassing voor 2 jaar;
- Deze woning komt uit de verhuur

Bij aankoop van deze woning zal de oplevering binnen 6 weken plaatsvinden. Indien u over wilt gaan tot een optie of aankoop van de woning dient u aan Woonbron Makelaars aan te tonen dat de koopsom van de woning voor u financieel haalbaar is. Dit kan aangetoond worden door bijvoorbeeld afgifte van een uitgebracht advies door een daartoe deskundige en erkende financiële instelling of adviseur.

Plattegronden en afmetingen zijn indicatief.

Dit is een woning die u koopt op de vrije markt. Verbouwen of tussentijds een extra financiering voor een verbouwing afsluiten, dat regelt u zelf zonder aanvullende voorwaarden.
Wanneer u weer wilt verhuizen en de woning verkoopt, hoeft u hem niet aan de corporatie te verkopen. U kunt zelf een verkoopmakelaar uitzoeken die de woning voor u verkoopt op de vrije markt waarbij u zelf de verkoopprijs bepaalt.

U mag de woning niet verhuren of op andere wijze in gebruik geven aan anderen, dit geldt ook voor opvolgende eigenaren als u de woning weer gaat verkopen! Bewoning of huur door een eerstegraads bloed- of aanverwant wordt als eigen bewoning beschouwd. Het is niet toegestaan om de woning binnen twee jaar na het tekenen van de akte van levering te verkopen. Dit wordt opgenomen in de koopovereenkomst en akte van levering.

Overdracht

Vraagprijs € 475.000 k.k.
Aangeboden sinds 2 maanden
Status Verkocht onder voorbehoud
Aanvaarding Per direct

Bouw

Soort object Woonhuis, tussenwoning
Soort bouw Bestaande bouw
Bouwjaar 1921

Oppervlakten en inhoud

Woonoppervlakte 84 m²
Perceeloppervlakte 148 m²
Inhoud 252 m³

Indeling

Aantal kamers 3 kamers (2 slaapkamers)
Woonlagen 3

Energie

Energielabel D
Woonbron Makelaars
Deze woning is van Woonbron Makelaars.
Voor bezichtigingen reageer op dit object via de volgende knop.

Heb je interesse en wil je een bod uitbrengen of wil je meer informatie? Neem contact op met CORPOwonen