Klipperstraat 3

3317 ZE Dordrecht

€ 420.750 k.k.

Koopgarant
Sluiten

Reageren

Klipperstraat 3
Dordrecht


 
 

Dordrecht – Wielwijk

INSCHRIJVEN VOOR DEZE WONING KAN TOT UITERLIJK MAANDAG 23 FEBRUARI 2026 TOT 09.00 UUR.

Koopsom van € 495.000,00 k.k. voor € 420.750,00 k.k. (met terugkoop-garantie)

Inschrijven kan alleen via de QR-Code in de brochure. Zonder inschrijving via de link, loot u niet mee!

Kandidaten met een sociale huurwoning van verkoper en met een passend inkomen, krijgen voorrang op deze KoopGarant-woning. Bij meerdere kandidaten gaat de kandidaat met het langstlopende huidige huurcontract voor. Voorwaarde is dat de huur direct na het vervallen van de ontbindende voorwaarde voor financiering opgezegd wordt.

Algemeen:
Goed onderhouden eengezinshoekwoning in Wielwijk. De woning bevindt zich aan het einde van de straat op een rustige plek in directe nabijheid van de rondweg Dordrecht alsmede diverse winkels en scholen. De woning is netjes bewoond geweest en verkeerd in een zeer fraaie staat van onderhoud. Kortom: U kunt de woning direct betrekken.

Indeling:

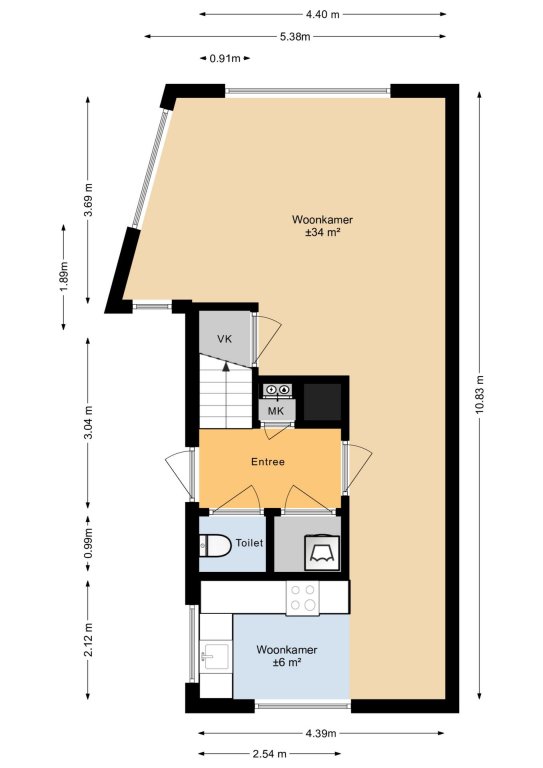
Begaande grond:
Ruime entree/hal met aan de rechterzijde een sanitair ruimte, geheel betegeld met grote wandtegels en een zwevend toilet. Tevens aanwezig; een praktische inbouwkast met opstelplaats wasmachine aansluiting en een meterkast alsmede een trapopgang naar de verdiepingen. De woonkamer heeft dankzij haar hoekligging extra veel raampartijen alsmede een praktische inbouwkast. Er is voldoende ruimte voor het plaatsen van een vier persoons eettafel. De keuken is fraai afgewerkt in een moderne stijl. Een licht aanrechtblad en grijze kasten en laden. Aan voorzieningen aanwezig; een elektrische kookplaat, oven, afzuigkap en een vaatwasser. De keuken is afgewerkt met inbouwspots. De tuin is rondom de woning gelegen. Er is een voor-, achter- en een zij tuin aanwezig. De tuin is volledig betegeld met grote tuintegels in een lichte afwerking. Aan faciliteiten aanwezig: een grote tuinberging en een net hekwerk.

Eerste verdieping:
Ruime overloop met toegang tot de twee slaapkamers. Beide kamers zijn voorzien van een nette laminaatvloer. Extra bijzonder is de speelse indeling waardoor deze kamers ook diverse zijramen hebben. Airconditioning aanwezig. Terug naar de overloop; hier is tevens bereikbaar een ruime garderobekamer met veel kastruimte voor kleding en schoeisel.
Het pareltje van de woning: de badkamer!. De fraaie badkamer is afgewerkt met inbouwspots en een lichtgrijze vloer- en wandtegels. Aan voorzieningen aanwezig; een extra brede wastafel met meubel en spiegel met verlichting, een zwevend toilet met ingebouwd toiletpapier houder en een grote inloopdouche met mengkranen en regenkop.

Tweede verdieping:
De open zolder is omgeturnd tot een derde slaapkamer. Deze ruime kamer is voorzien van diverse inbouwkasten, fraai afgewerkt. De dakkapel zorgt ervoor dat er voldoende ruimte is voor het plaatsen van een Kingsize bed. Verder valt op de diverse raampartijen, de fraaie afwerking en handig een airco! ’t Bezichtigen waard.

Afmetingen:
- Woonkamer totaal ca. 34m²
- Keuken totaal ca. 6m²
- Badkamer totaal ca. 9m²
- Slaapkamer 1 totaal ca. 15m²
- Slaapkamer 2 totaal ca. 9m²
- Slaapkamer 3 totaal ca. 29m²
- Tuin totaal ca. 60m²

Kenmerken:
- Prachtige hoekwoning in Wielwijk!;
- Gunstig en rustig gesitueerd aan de rand van de wijk;
- Moderne keuken en badkamer aanwezig;
- Tuin rondom.

Bijzonderheden/kenmerken:
INSCHRIJVEN VOOR DEZE WONING KAN TOT UITERLIJK MAANDAG 23 FEBRUARI 2026 TOT 09.00 UUR.
- Eeuwigdurende zelfbewoningsplicht;
- Projectnotaris van toepassing;
- Erfpacht eeuwigdurend afgekocht;
- Met terugkoopgarantie;
- Koopgarant voorwaarden van toepassing;
- Maandelijkse VvE-bijdrage ca. € 46,02.

Bij aankoop van deze woning zal de oplevering binnen 6 weken plaatsvinden. Indien u over wilt gaan tot een optie of aankoop van de woning dient u aan Woonbron Makelaars aan te tonen dat de koopsom van de woning voor u financieel haalbaar is. Dit kan aangetoond worden door bijvoorbeeld afgifte van een uitgebracht advies door een daartoe deskundige en erkende financiële instelling of adviseur.

Plattegronden en afmetingen zijn indicatief.

Deze woning wordt gepubliceerd met een deadline tot wanneer u zich bij interesse kunt aanmelden, daarna kijken we of er geïnteresseerden met voorrang zijn. Is dit niet het geval dan wordt er geloot.

Kandidaten met een sociale huurwoning van Woonbron en met een passend inkomen, krijgen voorrang op deze KoopGarant-woning. Bij meerdere kandidaten gaat de kandidaat met het langstlopende huidige huurcontract voor. Voorwaarde is dat de huur direct na het vervallen van de ontbindende voorwaarde voor financiering opgezegd wordt.’

Bijzonderheden:
• Voorrangsregeling van toepassing voor huurders van een sociale huurwoning van Woonbron met een passend inkomen.
• Zelfbewoningsplicht, dus (kamer)verhuur of studentenbewoning is niet toegestaan.
• Inschrijving is alleen mogelijk indien u 18 jaar of ouder bent.
• Degene die inschrijft dient de uiteindelijke koper en bewoner te zijn, koopt u samen dan moet u zich ook samen inschrijven door middel van één inschrijving. De bruto-inkomens van alle kopers tellen mee voor de voorrangsregeling.
• Bij meerdere inschrijvingen (ook uit hetzelfde huishouden) vervalt uw deelname.
• U dient op uw contactgegevens bereikbaar te zijn, indien wij u twee dagen niet hebben kunnen bereiken behouden wij ons het recht voor om de woning aan de volgende kandidaat te verkopen.
• Inschrijven kan tot de deadline gemeld in de advertentie.
• Plattegronden en afmetingen zijn indicatief!

KoopGarant
Deze woning wordt onder (Onder)Erfpacht- en KoopGarantbepalingen verkocht. U krijgt van Woonbron een koperskorting van 15% op de taxatiewaarde van deze woning. Dat scheelt aanzienlijk in uw woonlasten. Deze korting wordt bij terugverkoop verrekend. Met KoopGarant bent u bovendien verzekerd van een snelle verkoop als u gaat verhuizen. Woonbron koopt de woning binnen drie maanden van u terug.
We plannen de bezichtiging als eerste met geïnteresseerden die voorrang bij ons krijgen. Als er geen voorrangskandidaten zijn gaan we over tot loting.

Voorwaarden KoopGarant
Aan het kopen van een KoopGarant-woning zijn voorwaarden verbonden. Zo heeft u een zelfbewoningplicht, wat onder andere betekent dat u de woning niet (gedeeltelijk) mag verhuren. Daarnaast moet u uw hypotheek afsluiten met Nationale Hypotheekgarantie (NHG). Bovendien wordt, als u de woning terugverkoopt aan Woonbron, de winst of het verlies gedeeld in een verhouding van 15% voor Woonbron en 85% voor u. Een onafhankelijk taxateur bepaalt de marktwaarde van uw woning bij aan- en verkoop. De aan- en verkoopprijs is een vastgestelde prijs, u kunt hier niet over onderhandelen.

Overdracht

Koopsom € 420.750 k.k.
Kopersregeling Koopgarant
Aangeboden sinds 4 maanden
Status Te koop

Bouw

Soort object Woonhuis, hoekwoning
Soort bouw Bestaande bouw
Bouwjaar 2000

Oppervlakten en inhoud

Woonoppervlakte 131 m²
Inhoud 340 m³

Indeling

Aantal kamers 4 kamers (3 slaapkamers)
Woonlagen 3

Energie

Energielabel A

VvE

Bijdrage € 46 per maand
Woonbron Makelaars
Deze woning is van Woonbron Makelaars.
Voor bezichtigingen reageer op dit object via de volgende knop.

Heb je interesse en wil je je inschrijven? Klik op de ‘Online Inschrijven’-knop hieronder.