Stavenissestraat 297

3086 RE Rotterdam

€ 215.000 k.k.

Bijna verkocht
Sluiten

Reageren

Stavenissestraat 297
Rotterdam


 
 

Rotterdam – Pendrecht

Heeft u interesse in deze woning? Laat het ons weten via “Reageer op dit object” of op Funda via “Contact met de makelaar”.

Vraagprijs € 215.000,00 k.k.

Starter-appartement gelegen op de eerste woonlaag met 2 slaapkamers, een balkon op het zuidoosten en een ruime berging. Het appartement is voorzien van een cv- installatie met een goed onderhouden ketel (bouwjaar 2013), maar dient intern gemoderniseerd te worden. Ben jij een handige klusser die graag zijn eigen fijne thuis creëert? Dan is dit appartement zeker een bezichtiging waard!

De ligging is ideaal voor wie werkt in de Waalhaven of omgeving Rotterdam-zuid. Het complex bevindt zich aan de rand van Rotterdam Zuid in de wijk Pendrecht. In de directe omgeving vind je diverse winkels, een aantal horeca gelegenheden, sportverenigingen en wandelpaden in het Zuiderpark. Ook het openbaar vervoer op korte afstand (bus en metrohalte).

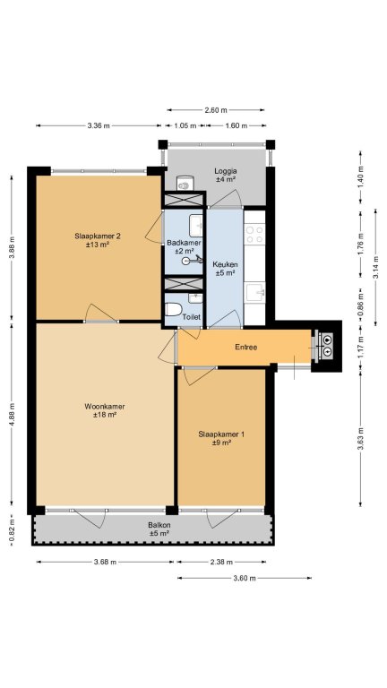
Indeling Begane grond
Entree complex met brievenbussen en trap naar verdiepingen en gang naar de bergingen.

Eerste woonlaag: Entree/hal met intercom, meterkast, 1e slaapkamer aan de voorzijde met deur naar het balkon, toilet, dichte keuken met eenvoudige opstelling, loggia met opstelling van de cv ketel en aansluiting wasmachine. Vanuit de hal de woonkamer met toegang tot het balkon aan de voorzijde en toegang tot de 2e slaapkamer aan de achterzijde. Vanuit deze slaapkamer is er toegang naar de geheel betegelde badkamer met douche en wastafel.
Berging in de onderbouw.

Afmetingen:
- Woonkamer totaal ca. 18m²
- Keuken totaal ca. 5m²
- Badkamer totaal ca. 2m²
- Slaapkamer 1 totaal ca. 9m² - Slaapkamer 2 totaal ca. 13m²
- Balkon totaal ca. 5m² - Berging totaal ca. 20m²

Bijzonderheden:
- Ouderdom en Niet bewonersclausule van toepassing
- Projectnotaris van toepassing
- Eeuwigdurende zelfbewoningsplicht van toepassing
- Anti-speculatiebeding van 2 jaar van toepassing
- Maandelijkse VvE-bijdrage ca. €119,53 - Remeha Avante HR ketel (bouwjaar 2013) - Eigen risico: verlaagd plafond met inbouwspots, geen zicht op aansluiting boven

Bij aankoop van deze woning zal de oplevering binnen 6 weken plaatsvinden. Indien u over wilt gaan tot een optie of aankoop van de woning dient u aan Woonbron Makelaars aan te tonen dat de koopsom van de woning voor u financieel haalbaar is. Dit kan aangetoond worden door bijvoorbeeld afgifte van een uitgebracht advies door een daartoe deskundige en erkende financiële instelling of adviseur.

Plattegronden en afmetingen zijn indicatief.

Dit is een woning die u koopt op de vrije markt. Verbouwen of tussentijds een extra financiering voor een verbouwing afsluiten, dat regelt u zelf zonder aanvullende voorwaarden.
Wanneer u weer wilt verhuizen en de woning verkoopt, hoeft u hem niet aan de corporatie te verkopen. U kunt zelf een verkoopmakelaar uitzoeken die de woning voor u verkoopt op de vrije markt waarbij u zelf de verkoopprijs bepaalt.

U mag de woning niet verhuren of op andere wijze in gebruik geven aan anderen, dit geldt ook voor opvolgende eigenaren als u de woning weer gaat verkopen! Bewoning of huur door een eerstegraads bloed- of aanverwant wordt als eigen bewoning beschouwd. Het is niet toegestaan om de woning binnen twee jaar na het tekenen van de akte van levering te verkopen. Dit wordt opgenomen in de koopovereenkomst en akte van levering.

Overdracht

Vraagprijs € 215.000 k.k.
Aangeboden sinds 2 maanden
Status Verkocht onder voorbehoud
Aanvaarding Per direct

Bouw

Soort object Appartement, portiekwoning
Soort bouw Bestaande bouw
Bouwjaar 1958

Oppervlakten en inhoud

Woonoppervlakte 58 m²
Inhoud 140 m³

Indeling

Aantal kamers 3 kamers (2 slaapkamers)
Woonlagen 1
Gelegen op verdieping 1

Energie

Energielabel E

VvE

Bijdrage € 119 per maand
Woonbron Makelaars
Deze woning is van Woonbron Makelaars.
Voor bezichtigingen reageer op dit object via de volgende knop.

Heb je interesse en wil je een bod uitbrengen of wil je meer informatie? Neem contact op met CORPOwonen