Millinxstraat 76-A

3081 PR Rotterdam

€ 295.000 k.k.

Bijna verkocht
Sluiten

Reageren

Millinxstraat 76-A
Rotterdam


 
 

Nu beschikbaar, een leuk, ruim en geheel instapklaar maisonnette woning op Zuid!
Dit 4-kamer appartement in de wijk Tarwewijk is ruim van opzet. heeft een eigen opgang en is gelegen op de 2e en 3e etage. Het appartement is intern geheel gemoderniseerd in 2019 en heeft een riante eetkeuken met veel opbergmogelijkheden. Kortom, deze woning is van alle gemakken voorzien. Door de centrale ligging in de wijk zijn alle voorzieningen en uitvalswegen goed bereikbaar. En wil je naar de stad dan kan dat binnen enkele minuten met de fiets of het ov. Benieuwd?

Kom naar het open huis op woensdag 18 februari tussen 10.00 en 11.00 uur. Je hoeft hiervoor geen afspraak te maken en bent van harte welkom.

Bijzonderheden:
Begane grond: entree met eigen opgang, vaste trap. De trappen in de woning zijn bekleed met tapijt.

1e etage; tussen etage en trapopgang naar etage.

2e etage;
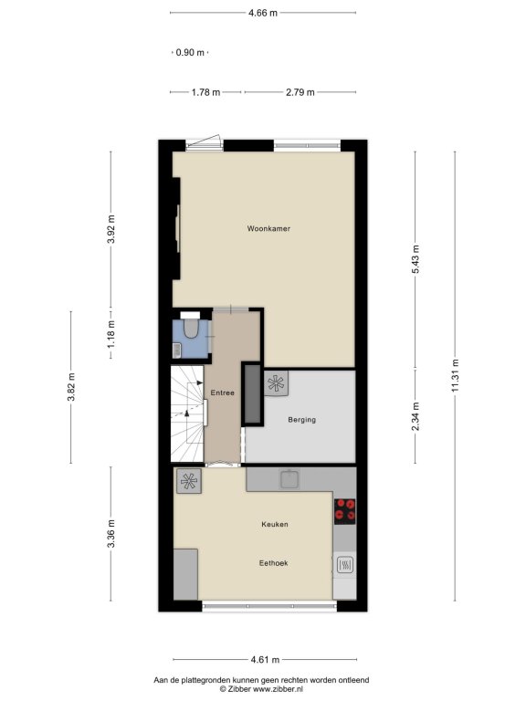
Overloop, met extra gecreëerde tussenkamer, meterkast, toilet, vaste trap en toegang tot de ruim gelegen woonkamer van ca. 28 m², deze ruimte heeft een frans balkon met openslaande deuren en is gelegen op het oosten
De riante eetkeuken van ca. 16 m² heeft een modern keukenblok van 2019 en is voorzien van een inductie kookplaat, oven, afzuigkap en vaatwasser
De toiletruimte is voorzien van een zwevend toilet met fonteintje

3e etage;
Overloop met lichtkoepel, cv-kast met mechanische ventilatie unit en, tevens te gebruiken als berging en 2e toiletruimte met zwevend toilet
Slaapkamer 1 van ca. 10 m² is gelegen aan de achterzijde en heeft toegang tot het balkon gelegen op het oosten
Slaapkamer 2 van ca. 12 m² is ook gelegen aan de achterzijde en heeft ook toegang tot het balkon
Slaapkamer 3 van ca. 13 m² en gelegen aan de straatzijde
De badkamer van ca. 5 m² met modern sanitair is voorzien van een wastafelmeubel, radiator, douchecabine en wasautomaat-/droger aansluiting
Deze woning heeft geen prive berging

Goed om te weten:
De VvE-bijdrage is ongeveer € 93,51 per maand, volgens begroting 2026
Warmwater en warmte via C.V. ketel van het merk Intergas van bouwjaar ca. 2013.
Vrije verkoop met eigen grond
Datum levering/transport zal, in overleg met verkoper, plaatsvinden op 20 mei 2026
Deze woning heeft een eeuwigdurende zelfbewoningsplicht: je mag de woning niet verhuren of in gebruik geven aan iemand anders
Er geldt een antispeculatiebeding: je moet minimaal twee jaar zelf in het huis wonen vóór je het mag verkopen
Je tekent de notariële overdracht bij de projectnotaris
Er is een voorrangsregeling van toepassing

Tarwewijk is zo’n woonwijk waar de buren nog een praatje met elkaar maken, de kinderen buitenspelen op het plein en buurtgenoten activiteiten organiseren in de wijkgebouwen voor jong en oud. Een heel fijne woonwijk dus, aan de Maashaven, in Rotterdam-Zuid.
In dit gebied kun je naast wonen ook fijn werken, winkelen en uitgaan. Evenementenlocatie Maassilo zit aan de rand van de wijk. Op het Afrikaanderplein kun je twee keer per week naar de markt voor je boodschappen en meer. Er zijn wel 200 kramen!

Tarwewijk heeft meerdere basisscholen en kinderopvanglocaties. Er zijn huisartsen en gezondheidscentrum Zuidplein is vlakbij. Vanaf metrostation Maashaven ben je in vijftien minuten in het centrum van de stad. Of je gaat de andere kant op, naar het grote winkelcentrum Zuidplein, om te shoppen. De tram brengt je snel naar wijken in de omgeving.

Ook in de buurt: Ahoy, Katendrecht (Deliplein), Kop van Zuid, Zwembad Afrikaanderplein, Zwemcentrum Rotterdam, Zuiderpark.

De advertenties op deze website zijn met de grootste zorg opgesteld. Toch kan het onverhoopt voorkomen dat een advertentie niet volledig is of een fout bevat. Derhalve zijn alle advertenties onder voorbehoud van druk-, type- en spelfouten.

Overdracht

Koopsom € 295.000 k.k.
Aangeboden sinds 2 maanden
Status Verkocht onder voorbehoud
Aanvaarding In overleg

Bouw

Soort object Appartement, bovenwoning
Soort bouw Bestaande bouw
Bouwjaar 1931

Oppervlakten en inhoud

Woonoppervlakte 110 m²
Inhoud 333 m³

Indeling

Aantal kamers 5 kamers (3 slaapkamers)
Woonlagen 2
Gelegen op verdieping 2

Energie

Energielabel A

VvE

Bijdrage € 88 per maand
Woonstad Rotterdam
Deze woning is van Woonstad Rotterdam.
Voor bezichtigingen reageer op dit object via de volgende knop.

Heb je interesse en wil je een bod uitbrengen of wil je meer informatie? Neem contact op met CORPOwonen