Zweedsestraat 117-A01

3028 TR Rotterdam

€ 240.000 k.k.

Bijna verkocht
Sluiten

Reageren

Zweedsestraat 117-A01
Rotterdam


 
 

Rotterdam Oud-Mathenesse

Vraagprijs € 240.000,00 k.k.

Heeft u interesse in deze woning? Laat het ons weten via Woonbron.nl met de groene knop "Reageer nu" of via Corpowonen met de oranje knop “Reageer op dit object”.

Op de eerste en deels derde verdieping bieden wij in Rotterdam West in de wijk Oud-Mathenesse een 4 kamer appartement aan met eeuwigdurend afgekochte erfpacht. De woning dient intern gemoderniseerd te worden maar beschikt over mooie ruimtes, isolerende beglazing en een CV- installatie met een HR- Combiketel.

Het appartement ligt rustig maar tegelijkertijd heel centraal ten opzichte van de winkels op de Franselaan, openbaar vervoersvoorzieningen en uitvalswegen (A20 en A13). Het centrum van Rotterdam, het Dakpark, Historische Delfshaven en het centrum van Schiedam zijn met de fiets goed en snel bereikbaar.

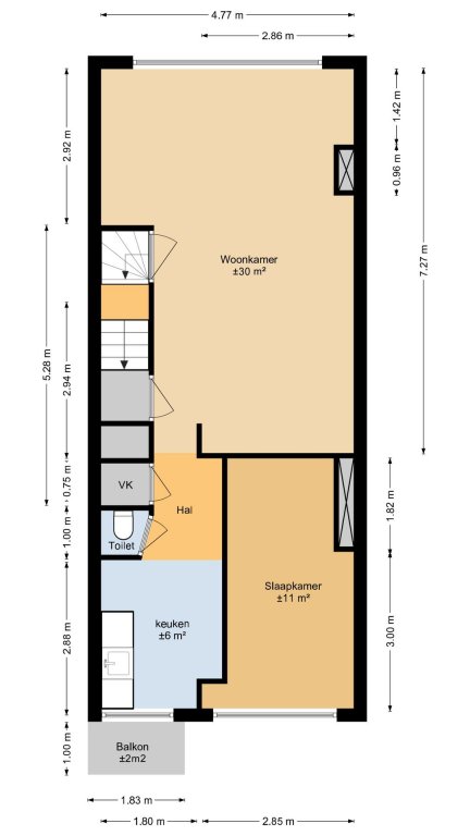
Indeling:
Begane grond
Gedeelde entree met trap naar de eerste verdieping.

Eerste verdieping
Entree hal/gang meterkast, toilet en de woonkamer aan de voorzijde. Aan de achterzijde de eenvoudige keuken met toegang tot een balkon op het noorden. Vanuit de woonkamer is er toegang naar een kamer aan de achterzijde en de trap naar de derde verdieping.

Derde verdieping
Overloop met opstelling cv en wasmachine aansluiting. Twee slaapkamers aan de achterzijde en de badkamer. De badkamer is deels betegeld en voorzien van douchemogelijkheid, wasbak met spiegel

Fietsenberging aan de achterzijde van het complex.

Afmetingen:
- Woonkamer totaal ca. 30 m²
- Keuken totaal ca. 6 m²
- Slaapkamer 1 totaal ca. 11 m²
- Slaapkamer 2 totaal ca. 10 m²
- Slaapkamer 3 totaal ca. 5 m²
- Badkamer totaal ca. 4 m²
- Balkon totaal ca. 2 m²

Bijzonderheden:
- Kluspand
- EnergielabeL C
- Eeuwigdurend afgekochte erfpacht. Bloot Eigendom wordt meegeleverd
- Cv ketel met bouwjaar 2010 (geen garantie )
- Eeuwigdurend zelfbewoningsplicht
- Anti speculatiebeding van 2 jaar van toepassing
- Projectnotaris van toepassing
- Maandelijkse VvE-bijdrage ca. € 125,00 (wordt mogelijk nog verhoogd)
- Ouderdom en Niet-bewonersclausule van toepassing
- Verkoop in huidige staat

Bij aankoop van deze woning zal de oplevering binnen 6 weken plaatsvinden. Indien u over wilt gaan tot een optie of aankoop van de woning dient u aan Woonbron Makelaars aan te tonen dat de koopsom van de woning voor u financieel haalbaar is. Dit kan aangetoond worden door bijvoorbeeld afgifte van een uitgebracht advies door een daartoe deskundige en erkende financiële instelling of adviseur.

Plattegronden en afmetingen zijn indicatief.

Dit is een woning die u koopt op de vrije markt. Verbouwen of tussentijds een extra financiering voor een verbouwing afsluiten, dat regelt u zelf zonder aanvullende voorwaarden.
Wanneer u weer wilt verhuizen en de woning verkoopt, hoeft u hem niet aan de corporatie te verkopen. U kunt zelf een verkoopmakelaar uitzoeken die de woning voor u verkoopt op de vrije markt waarbij u zelf de verkoopprijs bepaalt.

U mag de woning niet verhuren of op andere wijze in gebruik geven aan anderen, dit geldt ook voor opvolgende eigenaren als u de woning weer gaat verkopen! Bewoning of huur door een eerstegraads bloed- of aanverwant wordt als eigen bewoning beschouwd. Het is niet toegestaan om de woning binnen twee jaar na het tekenen van de akte van levering te verkopen. Dit wordt opgenomen in de koopovereenkomst en akte van levering.

Overdracht

Vraagprijs € 240.000 k.k.
Aangeboden sinds 3 maanden
Status Verkocht onder voorbehoud
Aanvaarding Per direct

Bouw

Soort object Appartement, bovenwoning
Soort bouw Bestaande bouw
Bouwjaar 1937

Oppervlakten en inhoud

Woonoppervlakte 80 m²
Inhoud 232 m³

Indeling

Aantal kamers 4 kamers (3 slaapkamers)
Woonlagen 2
Gelegen op verdieping 1

Energie

Energielabel C

VvE

Bijdrage € 125 per maand
Woonbron Makelaars
Deze woning is van Woonbron Makelaars.
Voor bezichtigingen reageer op dit object via de volgende knop.

Heb je interesse en wil je een bod uitbrengen of wil je meer informatie? Neem contact op met CORPOwonen