Eisenhowerlaan 7

2625 GE Delft

€ 440.000 k.k.

Bijna verkocht
Sluiten

Reageren

Eisenhowerlaan 7
Delft


 
 

Delft – Buitenhof

Vraagprijs € 440.000,-- k.k.

Heeft u interesse in deze woning? Laat het ons weten via Woonbron.(nl) met de groene knop "Reageer nu" of via Corpowonen met de oranje knop “Reageer op dit object”.

Prima 5-kamer eengezinswoning, nog wel wat te klussen, in het groen gelegen, met voor- en een verzorgde achtertuin met berging en een inpandige berging aan de voorzijde. Gelegen nabij winkelcentrum ‘De Hoven”, de uitvalswegen A4 en A13, diverse parken, recreatievoorzieningen, (internationale) bedrijven en scholen.

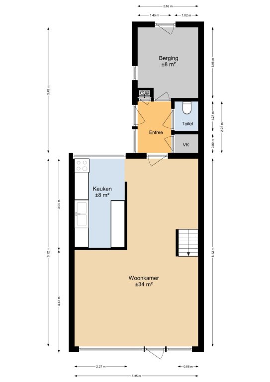
Indeling:
Voortuin en inpandige berging (ook bereikbaar via de hal/gang).
Begane grond: entree/hal, meterkast, toilet met fonteintje, vaste kast, woonkamer, ‘trapkast’ en een eenvoudige open keuken. Deur naar de achtertuin met berging. Trap naar de eerste verdieping: overloop, vaste kast, 3 slaapkamers waarvan 2 slaapkamers met een handige kastenwand, badkamer met douche, toilet en wastafel. Trap naar de tweede verdieping: overloop met opstelplaats CV-ketel en wasmachine/droger; slaapkamer 4.

Afmetingen:
- Woonkamer: totaal ca. 34.00 m²
- Keuken: totaal ca. 8.00 m²
- Badkamer: totaal ca. 5.00 m²
- Slaapkamer 1: totaal ca. 6.00 m²
- Slaapkamer 2: totaal ca. 11.00 m²
- Slaapkamer 3: totaal ca. 11.00 m²
- Slaapkamer 4/zolder: totaal ca. 29.00 m²
- Inpandige berging: totaal ca. 8.00 m²

Bijzonderheden:
- Eeuwigdurende zelfbewoningsplicht;
- Anti speculatiebeding van toepassing voor 2 jaar;
- Tuin ca. 50 m²;
- Elektra en meterkast vernieuwd (2006);
- TONZON vloerisolatie (2011);
- Dakisolatie dak en schuur (2011);
- 8 zonnepanelen geplaatst (2013);
- Collecteurriool vernieuwd (2025).

Bij aankoop van deze woning zal de oplevering binnen 6 weken plaatsvinden. Indien u over wilt gaan tot een optie of aankoop van de woning dient u aan Woonbron Makelaars aan te tonen dat de koopsom van de woning voor u financieel haalbaar is. Dit kan aangetoond worden door bijvoorbeeld afgifte van een uitgebracht advies door een daartoe deskundige en erkende financiële instelling of adviseur.

Plattegronden en afmetingen zijn indicatief.

Dit is een woning die u koopt op de vrije markt. Verbouwen of tussentijds een extra financiering voor een verbouwing afsluiten, dat regelt u zelf zonder aanvullende voorwaarden.
Wanneer u weer wilt verhuizen en de woning verkoopt, hoeft u hem niet aan de corporatie te verkopen. U kunt zelf een verkoopmakelaar uitzoeken die de woning voor u verkoopt op de vrije markt waarbij u zelf de verkoopprijs bepaalt.

U mag de woning niet verhuren of op andere wijze in gebruik geven aan anderen, dit geldt ook voor opvolgende eigenaren als u de woning weer gaat verkopen! Bewoning of huur door een eerstegraads bloed- of aanverwant wordt als eigen bewoning beschouwd. Het is niet toegestaan om de woning binnen twee jaar na het tekenen van de akte van levering te verkopen. Dit wordt opgenomen in de koopovereenkomst en akte van levering.

Overdracht

Vraagprijs € 440.000 k.k.
Aangeboden sinds 3 maanden
Status Verkocht onder voorbehoud
Aanvaarding In overleg

Bouw

Soort object Woonhuis, tussenwoning
Soort bouw Bestaande bouw
Bouwjaar 1971

Oppervlakten en inhoud

Woonoppervlakte 127 m²
Perceeloppervlakte 188 m²
Inhoud 381 m³

Indeling

Aantal kamers 5 kamers (4 slaapkamers)
Woonlagen 3

Energie

Energielabel B
Woonbron Makelaars
Deze woning is van Woonbron Makelaars.
Voor bezichtigingen reageer op dit object via de volgende knop.

Heb je interesse en wil je een bod uitbrengen of wil je meer informatie? Neem contact op met CORPOwonen