Libanonweg 68

3061 KM Rotterdam

€ 375.000 k.k.

Bijna verkocht
Sluiten

Reageren

Libanonweg 68
Rotterdam


 
 

Heerlijk wonen aan de rand van het Kralingse Bos? Vrij uitzicht? Twee slaapkamers? Grijp nu je kans! Nu beschikbaar, driekamerappartement met balkon.

Bijzonderheden:

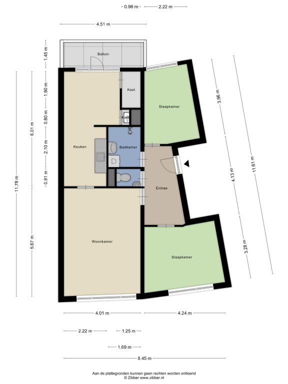
Ruime en lichte woonkamer, ca. 5.97x4.00m met vrij uitzicht.
Grote woonkeuken, ca. 6.05x2.93/2.00m met eenvoudig keukenblok en inpandige bergkast.
Balkon, ca. 3.00x1.40m aan de achterzijde.
Slaapkamer I, ca. 4.24x3.28m aan de voorzijde
Slaapkamer II, ca. 3.90x2.20m aan de achterzijde
Badkamer met douchehoek en wastafel, ca. 1.25x2.10m. Wasmachineaansluiting.
Eigen berging (ca. 6m²) in de onderbouw.


Goed om te weten:

Verwarming en warm water via CV ketel
Het betreft eeuwigdurende afgekochte erfpacht
Energielabel A
De VvE bijdrage is ca. €126,99 per maand
Deze woning heeft een eeuwigdurende zelfbewoningsplicht: je mag de woning niet verhuren of in gebruik geven aan iemand anders
Er geldt een antispeculatiebeding: je moet minimaal twee jaar zelf in het huis wonen vóór je het mag verkopen
Je tekent de notariële overdracht bij de projectnotaris
Voorrangsregeling van toepassing

Woon je in Kralingen, dan heb je het beste van twee werelden: de bruisende binnenstad én het groene Kralingse Bos liggen beide om de hoek. En de wijk zelf is een heerlijke plek om te wonen met veel historie.

Het is een afwisselende wijk met een mooie mix aan bewoners en huizen. Je woont hier tussen de gezinnen, eenpersoonshuishoudens, ouderen en jongeren - arm en rijk. Je vindt hier het rijkste stukje Nederland en gezellige volksbuurten

Wat kun je hier doen?

Kralingen staat bekend om de gezelligheid. Je hebt hier een ruime keus aan restaurants, cafés en lunchplekken. Verder is er alles wat je nodig hebt: van supermarkten tot toko’s en van luxe speciaalzaken tot de buurtwinkel op de hoek.

In de wijk liggen twee bijzondere parken: Het Park Rozenburg en Het Arboretum Trompenburg met bijzondere bomen en struiken. Naast hardlopen rond de Kralingse Plas, kun je hier als sporter van alles doen. Er zijn squash- en tennisbanen, volleybalverenigingen, een klimcentrum, watersporten en hockeyverenigingen. In het Kralingse bos zijn een manege en een golfbaan.

Openbaar vervoer en bereikbaarheid

Met de metrolijn die door de wijk loopt, ben je snel in het stadscentrum en in omliggende wijken. Je kunt op vier metrostations in- en uitstappen. En dan heb je nog verschillende tram- en buslijnen. Met de auto zit je via de Maasboulevard en de Abraham van Rijckevorselweg binnen een paar minuten op de ring van Rotterdam.

Overdracht

Koopsom € 375.000 k.k.
Aangeboden sinds 2 maanden
Status Verkocht onder voorbehoud
Aanvaarding In overleg

Bouw

Soort object Appartement, portiekwoning
Soort bouw Bestaande bouw
Bouwjaar 1991

Oppervlakten en inhoud

Woonoppervlakte 78 m²
Inhoud 200 m³

Indeling

Aantal kamers 3 kamers (2 slaapkamers)
Woonlagen 1
Gelegen op verdieping 1

Energie

Energielabel A

VvE

Bijdrage € 127 per maand
Woonstad Rotterdam
Deze woning is van Woonstad Rotterdam.
Voor bezichtigingen reageer op dit object via de volgende knop.

Heb je interesse en wil je een bod uitbrengen of wil je meer informatie? Neem contact op met CORPOwonen