Sibajakstraat 105

3029 NE Rotterdam

€ 242.250 k.k.

Koopgarant
Sluiten

Reageren

Sibajakstraat 105
Rotterdam


 
 

Rotterdam - Schiemond

INSCHRIJVEN VOOR DEZE WONING KAN TOT UITERLIJK DONDERDAG 26 FEBRUARI 2026 TOT 09.00 UUR.

Koopsom van € 285.000,00 k.k. voor € 242.250,00 k.k. (met terugkoop-garantie)

Inschrijven kan alleen via de QR-Code in de brochure. Zonder inschrijving via de link, loot u niet mee!

Kandidaten met een sociale huurwoning van verkoper en met een passend inkomen, krijgen voorrang op deze KoopGarant-woning. Bij meerdere kandidaten gaat de kandidaat met het langstlopende huidige huurcontract voor. Voorwaarde is dat de huur direct na het vervallen van de ontbindende voorwaarde voor financiering opgezegd wordt.

Op derde verdieping gelegen drie kamer appartement in de wijk Schiemond. De woning bevindt zich aan de Maas op korte afstand van een winkelboulevard en diverse openbaar vervoervoorzieningen. De woning is netjes bewoond geweest en voorzien van een moderne keuken met diverse inbouwapparatuur en ook de sanitaire ruimtes zijn gemoderniseerd. Voor de starter met niet al te veel klusambitie is dit appartement zeker een bezichtiging waard!

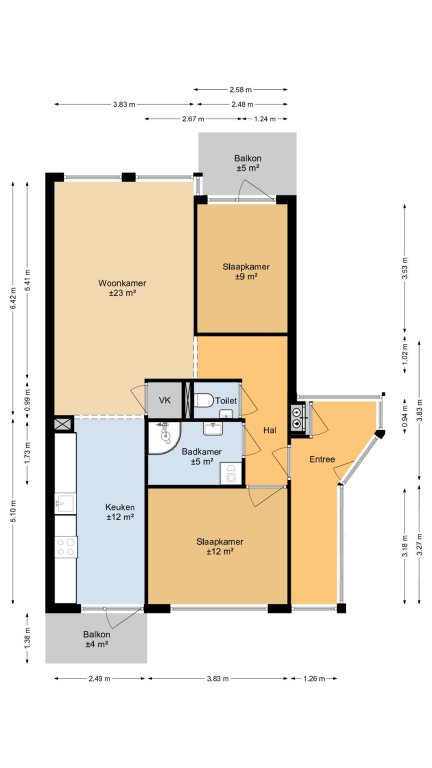
Indeling
Derde verdieping
De woning is toegankelijk via een tussenhal welke een oppervlakte kent van circa 8m² met meterkast.

Hal/entree met separaat sanitaire ruimte met zwevend toilet en fonteintje. Deze ruimte is geheel betegeld met lichte wandtegels.
De ruime woonkamer is voorzien van spachtelputz wanden en laminaatvloer met vloerverwarming (bijverwarming).
Aan de achterzijde van de woonkamer grenst de open keuken. Deze is voorzien van diverse inbouwapparatuur zoals een elektrische kookplaat en afzuigkap (zelf functioneel te maken), vaatwasser, oven, magnetron, koelkast en een vriezer.

Totaal zijn er twee slaapkamers verdeeld over voor- en achterzijde van de woning. Deze kamers hebben spachtelputz wanden en een laminaatvloer.

De badkamer is geheel betegeld en voorzien van een wastafel met meubel, douchegelegenheid met diverse voorzieningen, wasmachine aansluiting en een designradiator. De badkamer is geheel betegeld en afgewerkt met inbouwspots.

Totaal zijn er twee balkons waarvan 1 op het zuidoosten en 1 op het noordwesten. Het balkon aan de voorzijde heeft prachtig uitzicht over de Maas

Kenmerken:
- Leuke drie kamer appartement in Schiemond.
- Complex met lift en berging in onderbouw.
- Dubbele beglazing en kunststof kozijnen aanwezig.
- Nette badkamer en keuken (geen garantie op keukenapparatuur).
- Zicht op de Maas.
- Stadverwarming aanwezig
- Energielabel A

Afmetingen:
- Woonkamer totaal ca. 23 m²
- Keuken totaal ca. 12 m²
- Badkamer totaal ca. 5 m²
- Slaapkamer 1 totaal ca. 12 m²
- Slaapkamer 2 totaal ca. 9 m²
- Balkon 1 totaal ca. 5 m²
- Balkon 2 totaal ca. 4 m²

Bijzonderheden / kenmerken:
- Maandelijkse VvE-bijdrage (exclusief stookkosten) ca. € 179,55
- Erfpacht eeuwigdurend afgekocht
- Projectnotaris van toepassing
- Eeuwigdurend zelfbewoningsplicht
- Koopgarant bepalingen van toepassing
- Eigen bijdrage 2043 ivm vervanging kozijnen
- Ouderdom en Niet bewonersclausule van toepassing
- In woonkamer, keuken, hal zijn centrale dozen niet bereikbaar en niet gecontroleerd

Bij aankoop van deze woning zal de oplevering binnen 6 weken plaatsvinden. Indien u over wilt gaan tot een optie of aankoop van de woning dient u aan Woonbron Makelaars aan te tonen dat de koopsom van de woning voor u financieel haalbaar is. Dit kan aangetoond worden door bijvoorbeeld afgifte van een uitgebracht advies door een daartoe deskundige en erkende financiële instelling of adviseur.

Plattegronden en afmetingen zijn indicatief.

Deze woning wordt gepubliceerd met een deadline tot wanneer u zich bij interesse kunt aanmelden, daarna kijken we of er geïnteresseerden met voorrang zijn. Is dit niet het geval dan wordt er geloot.

Kandidaten met een sociale huurwoning van Woonbron en met een passend inkomen, krijgen voorrang op deze KoopGarant-woning. Bij meerdere kandidaten gaat de kandidaat met het langstlopende huidige huurcontract voor. Voorwaarde is dat de huur direct na het vervallen van de ontbindende voorwaarde voor financiering opgezegd wordt.’

Bijzonderheden:
• Voorrangsregeling van toepassing voor huurders van een sociale huurwoning van Woonbron met een passend inkomen.
• Zelfbewoningsplicht, dus (kamer)verhuur of studentenbewoning is niet toegestaan.
• Inschrijving is alleen mogelijk indien u 18 jaar of ouder bent.
• Degene die inschrijft dient de uiteindelijke koper en bewoner te zijn, koopt u samen dan moet u zich ook samen inschrijven door middel van één inschrijving. De bruto-inkomens van alle kopers tellen mee voor de voorrangsregeling.
• Bij meerdere inschrijvingen (ook uit hetzelfde huishouden) vervalt uw deelname.
• U dient op uw contactgegevens bereikbaar te zijn, indien wij u twee dagen niet hebben kunnen bereiken behouden wij ons het recht voor om de woning aan de volgende kandidaat te verkopen.
• Inschrijven kan tot de deadline gemeld in de advertentie.
• Plattegronden en afmetingen zijn indicatief!

KoopGarant
Deze woning wordt onder (Onder)Erfpacht- en KoopGarantbepalingen verkocht. U krijgt van Woonbron een koperskorting van 15% op de taxatiewaarde van deze woning. Dat scheelt aanzienlijk in uw woonlasten. Deze korting wordt bij terugverkoop verrekend. Met KoopGarant bent u bovendien verzekerd van een snelle verkoop als u gaat verhuizen. Woonbron koopt de woning binnen drie maanden van u terug.
We plannen de bezichtiging als eerste met geïnteresseerden die voorrang bij ons krijgen. Als er geen voorrangskandidaten zijn gaan we over tot loting.

Voorwaarden KoopGarant
Aan het kopen van een KoopGarant-woning zijn voorwaarden verbonden. Zo heeft u een zelfbewoningplicht, wat onder andere betekent dat u de woning niet (gedeeltelijk) mag verhuren. Daarnaast moet u uw hypotheek afsluiten met Nationale Hypotheekgarantie (NHG). Bovendien wordt, als u de woning terugverkoopt aan Woonbron, de winst of het verlies gedeeld in een verhouding van 15% voor Woonbron en 85% voor u. Een onafhankelijk taxateur bepaalt de marktwaarde van uw woning bij aan- en verkoop. De aan- en verkoopprijs is een vastgestelde prijs, u kunt hier niet over onderhandelen.

Overdracht

Koopsom € 242.250 k.k.
Kopersregeling Koopgarant
Aangeboden sinds 1 maand
Status Te koop
Aanvaarding Per direct

Bouw

Soort object Appartement, portiekflat
Soort bouw Bestaande bouw
Bouwjaar 1984

Oppervlakten en inhoud

Woonoppervlakte 72 m²
Inhoud 209 m³

Indeling

Aantal kamers 3 kamers (2 slaapkamers)
Woonlagen 1
Gelegen op verdieping 3

Energie

Energielabel A

VvE

Bijdrage € 180 per maand
Woonbron Makelaars
Deze woning is van Woonbron Makelaars.
Voor bezichtigingen reageer op dit object via de volgende knop.

Heb je interesse en wil je je inschrijven? Klik op de ‘Online Inschrijven’-knop hieronder.