Mosoelstraat 11

3193 EH Hoogvliet Rotterdam

€ 375.000 k.k.

Sluiten

Reageren

Mosoelstraat 11
Hoogvliet Rotterdam


 
 

Hoogvliet - Mosoelstraat 11

Heeft u interesse in deze woning? Laat het ons weten via Woonbron-nl met de groene knop "Reageer nu" of via Corpowonen met de oranje knop “Reageer op dit object”.

Vraagprijs €375.000,-- k.k.

Ruime eengezinswoning met vier slaapkamers en zonnige achtertuin – Mosoelstraat

Aan een rustige straat ligt deze ruime en praktisch ingedeelde eengezinswoning met vier slaapkamers, een verzorgde achtertuin met stenen berging en een fijne woonindeling verdeeld over drie woonlagen. De woning biedt volop mogelijkheden voor gezinnen en iedereen die op zoek is naar extra ruimte en comfort.

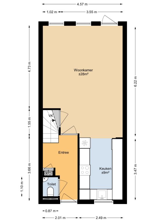
Begane grond
Via de entree bereikt u de hal met meterkast en toiletruimte. De tuingerichte woonkamer beschikt over een trapkast en biedt een prettige leefruimte met veel lichtinval. Aan de voorzijde bevindt zich de U-vormige keuken, voorzien van diverse apparatuur waaronder een koel-/vriescombinatie, magnetron, oven, 5-pits gaskooktoestel, afzuigkap en vaatwasser. De achtertuin is deels betegeld en deels groen aangelegd en beschikt over een stenen berging met elektra – ideaal voor opslag of hobbyruimte.

Eerste verdieping
De overloop geeft toegang tot drie slaapkamers, waarvan de slaapkamer aan de voorzijde is uitgerust met een praktische schuifkastenwand. De complete badkamer is voorzien van een ligbad, douche, wastafelmeubel en een toilet.

Tweede verdieping
Op de tweede verdieping bevindt zich een ruime overloop met opstelplaats voor de C.V.-ketel, wasmachineaansluiting en mechanische ventilatie-unit. Daarnaast is hier een vierde slaapkamer met dakraam gerealiseerd en beschikt de woning over extra bergruimte middels een bergvliering.

Kortom, een ruime en complete gezinswoning met een praktische indeling en veel mogelijkheden op een fijne locatie.

Afmetingen:
- Woonkamer totaal ca. 28m²
- Keuken totaal ca. 9m²
- Badkamer totaal ca. 5m²
- Slaapkamer 1 totaal ca. 14m²
- Slaapkamer 2 totaal ca. 10m²
- Slaapkamer 3 totaal ca. 8m²
- Slaapkamer 4 totaal ca. 20m²
- Zolder overloop totaal ca. 27m²


Bijzonderheden:
- Projectnotaris van toepassing;
- Eeuwigdurende zelfbewoningsplicht van toepassing;
- Anti-speculatiebeding van 2 jaar van toepassing;

Bij aankoop van deze woning zal de oplevering binnen 6 weken plaatsvinden. Indien u over wilt gaan tot een optie of aankoop van de woning dient u aan Woonbron Makelaars aan te tonen dat de koopsom van de woning voor u financieel haalbaar is. Dit kan aangetoond worden door bijvoorbeeld afgifte van een uitgebracht advies door een daartoe deskundige en erkende financiële instelling of adviseur.

Plattegronden en afmetingen zijn indicatief.

Dit is een woning die u koopt op de vrije markt. Verbouwen of tussentijds een extra financiering voor een verbouwing afsluiten, dat regelt u zelf zonder aanvullende voorwaarden.
Wanneer u weer wilt verhuizen en de woning verkoopt, hoeft u hem niet aan de corporatie te verkopen. U kunt zelf een verkoopmakelaar uitzoeken die de woning voor u verkoopt op de vrije markt waarbij u zelf de verkoopprijs bepaalt.

U mag de woning niet verhuren of op andere wijze in gebruik geven aan anderen, dit geldt ook voor opvolgende eigenaren als u de woning weer gaat verkopen! Bewoning of huur door een eerstegraads bloed- of aanverwant wordt als eigen bewoning beschouwd. Het is niet toegestaan om de woning binnen twee jaar na het tekenen van de akte van levering te verkopen. Dit wordt opgenomen in de koopovereenkomst en akte van levering.

Overdracht

Vraagprijs € 375.000 k.k.
Aangeboden sinds 3 maanden
Status Te koop
Aanvaarding Per direct

Bouw

Soort object Woonhuis, tussenwoning
Soort bouw Bestaande bouw
Bouwjaar 1991

Oppervlakten en inhoud

Woonoppervlakte 122 m²
Perceeloppervlakte 131 m²
Inhoud 280 m³

Indeling

Aantal kamers 4 kamers (3 slaapkamers)
Woonlagen 3

Energie

Energielabel B
Woonbron Makelaars
Deze woning is van Woonbron Makelaars.
Voor bezichtigingen reageer op dit object via de volgende knop.

Heb je interesse en wil je een bod uitbrengen of wil je meer informatie? Neem contact op met CORPOwonen