Troelstraweg 38

3317 TJ Dordrecht

€ 222.500 k.k.

Sluiten

Reageren

Troelstraweg 38
Dordrecht


 
 

Dordrecht - CRABBEHOF

Vraagprijs € 222.500,00 k.k.

Heeft u interesse in deze woning? Laat het ons weten via Woonbron .nl met de groene knop "Reageer nu" of via Corpowonen met de oranje knop “Reageer op dit object”.

RUIM 4-KAMERAPPARTEMENT MET BALKON OP HET OOSTEN EN VRIJ UITZICHT OVER WATER – GELEGEN IN DE WIJK CRABBEHOF, DORDRECHT

In de geliefde wijk Crabbehof in Dordrecht bevindt zich dit ruime vier kamer appartement op de derde verdieping van een appartementencomplex met berging in de onderbouw. Een ideale woning voor wie op zoek is naar ruimte, een prettige lichtinval én een fijne woonomgeving met alle voorzieningen binnen handbereik.

Wonen met uitzicht!
De lichte woonkamer biedt een prachtig vrij uitzicht over het vernieuwde straatbeeld aan de voorzijde, met zicht op een parkje en een grote vijver. Een heerlijke plek om te ontspannen en te genieten van rust en groen.

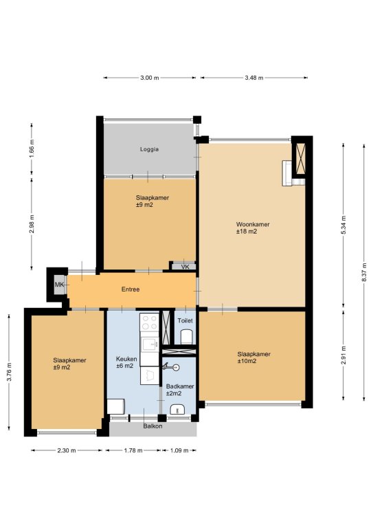
Indeling:

Derde verdieping:
Via de centrale entree bereikt u de woning op de derde verdieping. In de hal bevinden zich de meterkast, een praktische inbouwkast en een separate toiletruimte. De woonkamer is ruim opgezet en geniet van veel natuurlijk licht. De eenvoudige keuken is functioneel ingericht en voorzien van een oven, gasfornuis met afzuigkap en diverse kastruimte. De keuken biedt toegang tot het balkon. Het balkon (ca. 3 x 1 meter) is gelegen op het Oosten – ideaal voor een kop koffie in de ochtendzon. Aan de achterzijde kijkt u uit over de tuinen, wat zorgt voor extra privacy en een groen uitzicht. De woning beschikt over maar liefst drie slaapkamers, allen royaal bemeten is. Ideaal voor een gezin, thuiswerkplek of hobbyruimte.

De woning dient gemoderniseerd te worden (onder andere de keuken), wat u de mogelijkheid biedt deze geheel naar eigen smaak en wens in te richten. Woning wordt opgeleverd zonder warmte toestel.

Bent u op zoek naar een ruim appartement met veel potentie op een fijne locatie in Dordrecht? Neem dan contact op voor een bezichtiging en ontdek de mogelijkheden van deze woning!

Afmetingen:
- Woonkamer totaal ca. 18m²
- Keuken totaal ca. 6m²
- Badkamer totaal ca. 2m²
- Slaapkamer 1 totaal ca. 10m²
- Slaapkamer 2 totaal ca. 9m²
- Slaapkamer 3 totaal ca. 9m²
- Balkon totaal ca. 3m²
- Loggia totaal ca. 5m²

Kenmerken
- Ruim 4-kamerappartement;
- Gelegen op de derde verdieping;
- Drie slaapkamers;
- Balkon op het Oosten (ca. 3 x 1 m);
- Vrij uitzicht over waterpartij aan de voorzijde;
- Dubbel glas;
- Berging in de onderbouw;
- Winkels, scholen en speelgelegenheden op loopafstand;
- Gelegen in een groene en kindvriendelijke woonomgeving.

Bijzonderheden / kenmerken:
- Maandelijkse VvE-bijdrage (exclusief stookkosten) ca. € 148,33;
- Projectnotaris van toepassing;
- Eeuwigdurende zelfbewoningsplicht;
- Volle eigendom;
- Anti-speculatiebeding eerste 2 jaar.

De VvE staat voor de beslissing om verouderde en slecht geïsoleerde kozijnen te vervangen, mede vanwege warmteverlies, lekkages en oplopende onderhoudskosten. Het bundelen van de geplande werkzaamheden tot één integraal project kan zorgen voor meer duidelijkheid in planning, financiering en subsidiemogelijkheden. Hiermee wordt geïnvesteerd in duurzaam onderhoud, verbeterd wooncomfort en behoud van de waarde van de woningen.

Bij aankoop van deze woning zal de oplevering binnen 6 weken plaatsvinden. Indien u over wilt gaan tot een optie of aankoop van de woning dient u aan Woonbron Makelaars aan te tonen dat de koopsom van de woning voor u financieel haalbaar is. Dit kan aangetoond worden door bijvoorbeeld afgifte van een uitgebracht advies door een daartoe deskundige en erkende financiële instelling of adviseur.

Plattegronden en afmetingen zijn indicatief.

Dit is een woning die u koopt op de vrije markt. Verbouwen of tussentijds een extra financiering voor een verbouwing afsluiten, dat regelt u zelf zonder aanvullende voorwaarden.
Wanneer u weer wilt verhuizen en de woning verkoopt, hoeft u hem niet aan de corporatie te verkopen. U kunt zelf een verkoopmakelaar uitzoeken die de woning voor u verkoopt op de vrije markt waarbij u zelf de verkoopprijs bepaalt.

U mag de woning niet verhuren of op andere wijze in gebruik geven aan anderen, dit geldt ook voor opvolgende eigenaren als u de woning weer gaat verkopen! Bewoning of huur door een eerstegraads bloed- of aanverwant wordt als eigen bewoning beschouwd. Het is niet toegestaan om de woning binnen twee jaar na het tekenen van de akte van levering te verkopen. Dit wordt opgenomen in de koopovereenkomst en akte van levering.

Overdracht

Vraagprijs € 222.500 k.k.
Aangeboden sinds 1 maand
Status Te koop
Aanvaarding Per direct

Bouw

Soort object Appartement, portiekwoning
Soort bouw Bestaande bouw
Bouwjaar 1959

Oppervlakten en inhoud

Woonoppervlakte 68 m²
Inhoud 176 m³

Indeling

Aantal kamers 4 kamers (3 slaapkamers)
Woonlagen 1
Gelegen op verdieping 3

Energie

Energielabel E

VvE

Bijdrage € 148 per maand
Woonbron Makelaars
Deze woning is van Woonbron Makelaars.
Voor bezichtigingen reageer op dit object via de volgende knop.

Heb je interesse en wil je een bod uitbrengen of wil je meer informatie? Neem contact op met CORPOwonen