Jacob van Heemskerckstraat 32

3317 VM Dordrecht

€ 425.000 k.k.

Nieuw
Sluiten

Reageren

Jacob van Heemskerckstraat 32
Dordrecht


 
 

Dordrecht - Wielwijk

Vraagprijs € 425.000,00 k.k.

Heeft u interesse in deze woning? Laat het ons weten via Woonbron .nl met de groene knop "Reageer nu" of via Corpowonen met de oranje knop “Reageer op dit object”.

Speels ingedeelde split-level woning met ruimte, licht en comfort in Wielwijk!

Bent u op zoek naar een verrassend ruime en uitstekend onderhouden woning met een unieke indeling? Dan is deze prachtige split-level woning aan de Jacob van Heemskerkstraat absoluut een bezichtiging waard! Deze woning kenmerkt zich door haar speelse split-level opzet, waarbij de verschillende woonlagen op slimme wijze in elkaar overlopen. Dit zorgt niet alleen voor een dynamisch woongevoel, maar ook voor veel lichtinval, ruimtebeleving en een bijzonder karakter.

Ligging – wonen in Wielwijk

De woning is gelegen in de wijk Wielwijk, een groene en volop ontwikkelende woonwijk in Dordrecht.
Wielwijk staat bekend om:
Veel groenvoorzieningen en speelplekken
Diverse basisscholen en voorzieningen in de buurt
Een gunstige ligging ten opzichte van uitvalswegen
Een sterke vernieuwing en modernisering van de wijk
Op korte afstand vindt u de Winkelboulevard Dordrecht met supermarkten, winkels en speciaalzaken. Ook het historische centrum van Dordrecht is snel bereikbaar. De rondweg richting Rotterdam en Breda ligt op slechts enkele minuten rijden.

Indeling:
Souterrain / Benedenverdieping:
Via een korte trap bereikt u de benedenverdieping. Hier is ruimte voor garderobe en opslag van schoenen en jassen. Tevens heeft u toegang tot de ruime garage, die niet alleen breed maar ook hoog is – ideaal voor extra bergruimte.

Begane grond:
Entree met hal, meterkast en modern toilet met zwevend closet en fonteintje. Hier bevindt zich ook de garderoberuimte en de stijlvolle trapopgang naar de overige verdiepingen.

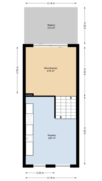
Eerste verdieping – Woonkamer
De lichte woonkamer is voorzien van een nette laminaatvloer en vloerverwarming. Via de schuifpui bereikt u het royale balkon (ca. 5 x 4,5 meter) op het Zuiden – perfect voor zonliefhebbers!

Tweede verdieping – Woonkeuken
De ruime woonkeuken biedt plaats voor een grote eettafel en is voorzien van een modern L-vormig keukenblok met diverse inbouwapparatuur, waaronder een vaatwasser, oven, magnetron, koelkast, vriezer en een 5-pits gaskookplaat. Dankzij de lage raampartijen geniet u hier van veel licht en een leuk uitzicht op de straat.

Derde verdieping – Slaapkamer
Ruime slaapkamer aan de achterzijde met laminaatvloer en veel lichtinval. Tevens een extra toiletruimte aanwezig.

Vierde verdieping – Slaapkamer & badkamer
Aan de voorzijde bevindt zich een tweede slaapkamer met speelse indeling. De moderne badkamer is voorzien van:
Royale douche met regenkop
Dubbele wastafel met meubel
Designradiator
Mogelijkheid tot het plaatsen van een ligbad

Vijfde verdieping – Slaapkamer & bergruimte
Overloop met inloopkast en aansluiting voor wasmachine. De derde slaapkamer is netjes afgewerkt en biedt volop mogelijkheden.

Kenmerken:
- Unieke split-level woning met speelse indeling;
- Veel lichtinval door verschillende niveaus;
- Ruime garage met extra hoogte;
- Zonnig balkon op het Zuiden;
- Moderne keuken en badkamer;
- Drie volwaardige slaapkamers;

Kortom: Een verrassend ruime en speels ingedeelde woning die comfort, licht en functionaliteit perfect combineert. Ideaal voor wie nét even iets anders zoekt dan een standaard woning!

De vertrekken op de plattegronden zitten op verschillende hoogtes.

Afmetingen:
- Woonkamer totaal ca. 16m²
- Keuken totaal ca. 20m²
- Badkamer totaal ca. 7m²
- Slaapkamer 1 totaal ca. 13m²
- Slaapkamer 2 totaal ca. 11m²
- Slaapkamer 3 totaal ca. 12m²
- Garage totaal ca. 18m²
- Balkon totaal ca. 13m²

Bijzonderheden:
- Bezichtiging in bewoonde staat op maandag 4 mei 2026 tussen 15.30 uur en 17.00 uur;
- Projectnotaris van toepassing;
- Eeuwigdurende zelfbewoningsplicht;
- Anti-speculatiebeding eerste 2 jaar;
- LET OP: Oplevering zal plaatsvinden na 10 juli 2026;
- Maandelijkse VvE-bijdrage (exclusief stookkosten) ca. € 17,00.

Dit is een woning die u koopt op de vrije markt. Verbouwen of tussentijds een extra financiering voor een verbouwing afsluiten, dat regelt u zelf zonder aanvullende voorwaarden.
Wanneer u weer wilt verhuizen en de woning verkoopt, hoeft u hem niet aan de corporatie te verkopen. U kunt zelf een verkoopmakelaar uitzoeken die de woning voor u verkoopt op de vrije markt waarbij u zelf de verkoopprijs bepaalt.

U mag de woning niet verhuren of op andere wijze in gebruik geven aan anderen, dit geldt ook voor opvolgende eigenaren als u de woning weer gaat verkopen! Bewoning of huur door een eerstegraads bloed- of aanverwant wordt als eigen bewoning beschouwd. Het is niet toegestaan om de woning binnen twee jaar na het tekenen van de akte van levering te verkopen. Dit wordt opgenomen in de koopovereenkomst en akte van levering.

Overdracht

Vraagprijs € 425.000 k.k.
Aangeboden sinds 2 april 2026
Status Te koop

Bouw

Soort object Woonhuis, tussenwoning
Soort bouw Bestaande bouw
Bouwjaar 2008

Oppervlakten en inhoud

Woonoppervlakte 114 m²
Perceeloppervlakte 45 m²
Inhoud 296 m³

Indeling

Aantal kamers 6 kamers (3 slaapkamers)
Woonlagen 6

Energie

Energielabel A

VvE

Bijdrage € 17 per maand
Woonbron Makelaars
Deze woning is van Woonbron Makelaars.
Voor bezichtigingen reageer op dit object via de volgende knop.

Heb je interesse en wil je een bod uitbrengen of wil je meer informatie? Neem contact op met CORPOwonen