Engelsestraat 137-A

3028 CE Rotterdam

€ 192.500 k.k.

Bijna verkocht
Sluiten

Reageren

Engelsestraat 137-A
Rotterdam


 
 

Rotterdam - Oud-Mathenesse

Vraagprijs € 192.500,00 k.k.

Heeft u interesse in deze woning? Laat het ons weten via Woonbron.nl met de groene knop "Reageer nu" of via Corpowonen met de oranje knop “Reageer op dit object”.

Op slechts 3 minuten fietsen vanaf station Schiedam bevindt zich dit compacte 3 kamer appartement met een klein tuintje op het noorden! In totaal 54m² en voorzien van kunststof kozijnen met dubbele beglazing en een cv installatie (ketel is verwijderd).

De wijk Oud Mathenesse ligt tussen Rotterdam en Schiedam. Op ca 5 minuten bevindt zich de oprit van de A20, de bushalte (lijn 38) aan de voorkant in de Franselaan en Marconiplein binnen 5 minuten fietsen. In de buurt diverse supermarkten, winkels en restaurants, diverse scholen, huisartsen, sportvoorzieningen en recreatieve voorzieningen (o.a. Kinderboerderij De Bokkesprong en Roel Langerakpark)

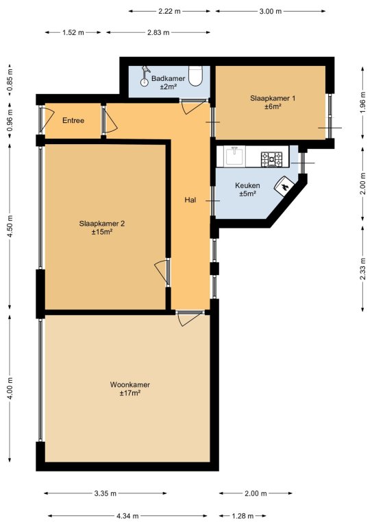
Indeling:
Begane grond
Entree/gang met toegang tot alle vertrekken. Als eerst de badkamer met douche en toilet, eerste slaapkamer met toegang naar de tuin aan de achterzijde, de eenvoudige dichte keuken, slaapkamer aan de voorzijde met grote raampartij en de woonkamer met veel lichtinval. In de tuin staat een kleine houten schuur voorzien van elektra.

Kenmerken:
– klus appartement op de begane grond
– Dubbele beglazing
– Kleine achtertuin

Afmetingen:
- Woonkamer totaal ca. 17m²
- Keuken totaal ca. 5m²
- Badkamer totaal ca. 2m²
- Slaapkamer totaal ca. 6m²
- Slaapkamer totaal ca. 15m²
- Tuin met een kleine schuur totaal ca. 4x4 m

Bijzonderheden:
- Geen verwarming en warm water (ketel verwijderd)
- Projectnotaris van toepassing
- Eeuwigdurende zelfbewoningsplicht van toepassing
- Anti-speculatiebeding van 2 jaar van toepassing
- Maandelijkse VvE bijdrage 2025 € 156,32 (bijdrage voor 2026 nog niet vastgesteld)
- Bloot Eigendom
- Ouderdom en Niet bewonersclausule van toepassing

Bij aankoop van deze woning zal de oplevering binnen 6 weken plaatsvinden. Indien u over wilt gaan tot een optie of aankoop van de woning dient u aan Woonbron Makelaars aan te tonen dat de koopsom van de woning voor u financieel haalbaar is. Dit kan aangetoond worden door bijvoorbeeld afgifte van een uitgebracht advies door een daartoe deskundige en erkende financiële instelling of adviseur.

Plattegronden en afmetingen zijn indicatief.

Dit is een woning die u koopt op de vrije markt. Verbouwen of tussentijds een extra financiering voor een verbouwing afsluiten, dat regelt u zelf zonder aanvullende voorwaarden.
Wanneer u weer wilt verhuizen en de woning verkoopt, hoeft u hem niet aan de corporatie te verkopen. U kunt zelf een verkoopmakelaar uitzoeken die de woning voor u verkoopt op de vrije markt waarbij u zelf de verkoopprijs bepaalt.

U mag de woning niet verhuren of op andere wijze in gebruik geven aan anderen, dit geldt ook voor opvolgende eigenaren als u de woning weer gaat verkopen! Bewoning of huur door een eerstegraads bloed- of aanverwant wordt als eigen bewoning beschouwd. Het is niet toegestaan om de woning binnen twee jaar na het tekenen van de akte van levering te verkopen. Dit wordt opgenomen in de koopovereenkomst en akte van levering.

Overdracht

Vraagprijs € 192.500 k.k.
Aangeboden sinds 2 maanden
Status Verkocht onder voorbehoud
Aanvaarding Per direct

Bouw

Soort object Appartement, benedenwoning
Soort bouw Bestaande bouw
Bouwjaar 1938

Oppervlakten en inhoud

Woonoppervlakte 54 m²
Inhoud 157 m³

Indeling

Aantal kamers 3 kamers (2 slaapkamers)
Woonlagen 1

Energie

Energielabel D

VvE

Bijdrage € 156 per maand
Woonbron Makelaars
Deze woning is van Woonbron Makelaars.
Voor bezichtigingen reageer op dit object via de volgende knop.

Heb je interesse en wil je een bod uitbrengen of wil je meer informatie? Neem contact op met CORPOwonen