De Berken 29

1402 KN Bussum

€ 405.000 k.k.

Bijna verkocht
Sluiten

Reageren

De Berken 29
Bussum


 
 

Karakteristieke uitgebouwde hoekwoning gelegen in de gerenoveerde woonwijk "Josephpark" met voor- zij- en achtertuin en achterom. De woning heeft een centrale ligging ten opzichte van de voorzieningen, zoals winkels, scholen, sportverenigingen, NS-station Bussum-Zuid met snelle verbindingen naar bijvoorbeeld Amsterdam, Schiphol, Hilversum en Utrecht. Natuurgebied de Bussummerheide ligt om de hoek.

Indeling:
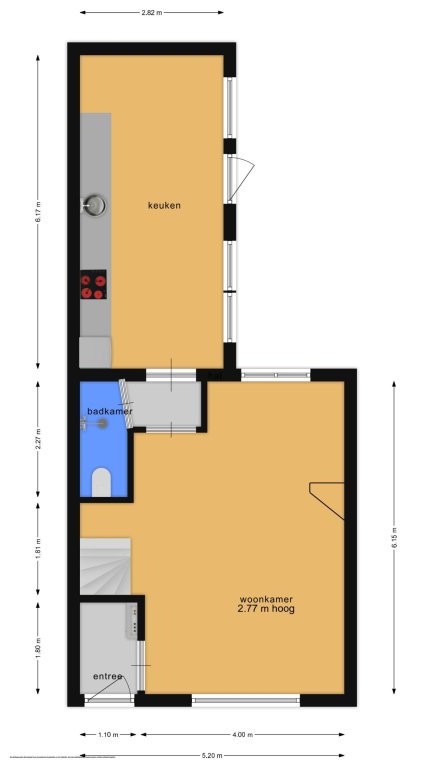
Entree, hal, woonkamer met spiltrap naar de 1e verdieping, tussenhal met douchekamer voorzien van toilet, uitgebouwde keuken met toegang naar de achtertuin,

1e verdieping, overloop, 3 slaapkamers, steektrap naar bergvliering met dakraam

Bijzonderheden:
• Deze woning wordt verkocht in VOLLEDIG EIGENDOM door de corporatie;
• Energielabel C;
• Kluswoning, divers onderhoud noodzakelijk;
• Voorzien van WTW installatie;
• Zelfbewoningsplicht van toepassing;
• De woning is bouwtechnisch gekeurd door een erkend bedrijf;
• Ingemeten conform de branchebrede meetinstructie op basis van NEN 2580.

De koper heeft de keuze uit een drietal notariskantoren: Van Hengstum & Stolp te Hilversum, Davina & Partners te Hilversum en Notariaat Wijdemeren te Loosdrecht.

Overdracht

Vraagprijs € 405.000 k.k.
Aangeboden sinds 2 maanden
Status Verkocht onder voorbehoud
Aanvaarding In overleg

Bouw

Soort object Woonhuis, hoekwoning
Soort bouw Bestaande bouw
Bouwjaar 1914

Oppervlakten en inhoud

Woonoppervlakte 80 m²
Perceeloppervlakte 151 m²
Inhoud 324 m³

Indeling

Aantal kamers 4 kamers
Woonlagen 3

Energie

Energielabel C
Dudok Wonen
Deze woning is van Dudok Wonen.
Voor bezichtigingen reageer op dit object via de volgende knop.

Heb je interesse en wil je een bod uitbrengen? Klik op de ‘Online Bieden’-knop hieronder.