Hontenissestraat 143

3086 KD Rotterdam

€ 230.000 k.k.

Bijna verkocht Zorgwoning
Sluiten

Reageren

Hontenissestraat 143
Rotterdam


 
 

Rotterdam – Charlois

Heeft u interesse in deze woning? Laat het ons weten via Woonbron-nl met de groene knop "Reageer nu" of via Corpowonen met de oranje knop “Reageer op dit object”.

Vraagprijs €230.000,-- k.k.

Ruim 4-kamerappartement met balkon en berging – Hontenissestraat 143, Rotterdam

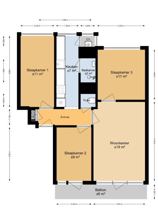
Op de derde verdieping van een verzorgd appartementencomplex met intercominstallatie ligt dit ruime appartement met drie slaapkamers, een balkon en een eigen berging. De woning is netjes afgewerkt en biedt een praktische indeling met voldoende ruimte voor een gezin, thuiswerkplek of hobbykamer.

Via de entree komt u in de hal, die is voorzien van een laminaatvloer, gestucte wanden en plafond en toegang geeft tot de verschillende vertrekken. De woonkamer is licht en ruim en beschikt eveneens over een laminaatvloer en nette afwerking. Vanuit de woonkamer is er toegang tot het balkon.

De dichte keuken is praktisch ingericht en voorzien van diverse inbouwapparatuur, waaronder een 4-pits gasstel, combi-oven, koelkast, vriezer en vaatwasser. Daarnaast beschikt de keuken over een bergkast, wasmachineaansluiting en de opstelplaats voor de HR-combiketel.

De woning beschikt over drie slaapkamers, allemaal voorzien van een laminaatvloer en strak afgewerkte wanden en plafonds. Eén van de slaapkamers heeft directe toegang tot het balkon.

De toiletruimte is voorzien van een hangend toilet en een nette afwerking met betegelde vloer en deels betegelde wanden. De badkamer beschikt over een douche en wastafelmeubel.

Tot slot beschikt de woning over een berging met elektra, ideaal voor extra opslag of het stallen van fietsen.

Een verzorgd appartement met veel ruimte, een praktische indeling en een fijne ligging in Rotterdam.

Afmetingen:
- Woonkamer totaal ca.19 m²
- Keuken totaal ca. 7 m²
- Badkamer totaal ca. 2 m²
- Slaapkamer 1 totaal ca. 11 m²
- Slaapkamer 2 totaal ca. 9 m²
- Slaapkamer 3 totaal ca. 11 m²
- Balkon totaal ca.6 m²

Bijzonderheden:
- Berging in de onderbouw;
- Projectnotaris van toepassing;
- Eeuwigdurende zelfbewoningsplicht van toepassing;
- Anti-speculatiebeding van 2 jaar van toepassing;
- Maandelijkse VvE-bijdrage circa €129,76.
- Oplevering per direct

Bij aankoop van deze woning zal de oplevering binnen 6 weken plaatsvinden. Indien u over wilt gaan tot een optie of aankoop van de woning dient u aan Woonbron Makelaars aan te tonen dat de koopsom van de woning voor u financieel haalbaar is. Dit kan aangetoond worden door bijvoorbeeld afgifte van een uitgebracht advies door een daartoe deskundige en erkende financiële instelling of adviseur.

Plattegronden en afmetingen zijn indicatief.

Dit is een woning die u koopt op de vrije markt. Verbouwen of tussentijds een extra financiering voor een verbouwing afsluiten, dat regelt u zelf zonder aanvullende voorwaarden.
Wanneer u weer wilt verhuizen en de woning verkoopt, hoeft u hem niet aan de corporatie te verkopen. U kunt zelf een verkoopmakelaar uitzoeken die de woning voor u verkoopt op de vrije markt waarbij u zelf de verkoopprijs bepaalt.

U mag de woning niet verhuren of op andere wijze in gebruik geven aan anderen, dit geldt ook voor opvolgende eigenaren als u de woning weer gaat verkopen! Bewoning of huur door een eerstegraads bloed- of aanverwant wordt als eigen bewoning beschouwd. Het is niet toegestaan om de woning binnen twee jaar na het tekenen van de akte van levering te verkopen. Dit wordt opgenomen in de koopovereenkomst en akte van levering.

Overdracht

Vraagprijs € 230.000 k.k.
Aangeboden sinds 2 maanden
Status Verkocht onder voorbehoud
Aanvaarding Per direct

Bouw

Soort object Appartement, portiekflat, zorgwoning
Soort bouw Bestaande bouw
Bouwjaar 1958

Oppervlakten en inhoud

Woonoppervlakte 67 m²
Inhoud 187 m³

Indeling

Aantal kamers 4 kamers (3 slaapkamers)
Woonlagen 1
Gelegen op verdieping 3

Energie

Energielabel C

VvE

Bijdrage € 130 per maand
Woonbron Makelaars
Deze woning is van Woonbron Makelaars.
Voor bezichtigingen reageer op dit object via de volgende knop.

Heb je interesse en wil je een bod uitbrengen of wil je meer informatie? Neem contact op met CORPOwonen